Enquêteur Inventaire
Dossier d’œuvre architecture IA00003266
| Réalisé par
;
- étude d'inventaire
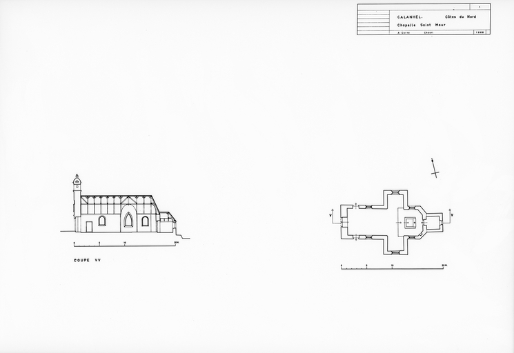
Chapelle Saint-Maur, Saint-Maur (Calanhel)
Œuvre étudiée
Auteur
Dossier non géolocalisé
Localisation
-
Aire d'étude et canton
Callac
-
Commune
Calanhel
-
Lieu-dit
Saint-Maur
-
Cadastre
1955
A
9
-
Dénominationschapelle
-
VocablesSaint-Maur
-
Parties constituantes non étudiéesenclos
Ce dossier correspond à une transcription numérique d’éléments d’enquêtes antérieures à 2000. Tout enrichissement est le bienvenu
Existence probable d'un édifice antérieur : baie du pignon nord remployée et fontaine datée 1717 ; édifice daté 1778.
-
Période(s)
- Principale : 4e quart 18e siècle
-
Dates
- 1778, porte la date
-
Murs
- granite
-
Toitsardoise
-
Plansplan symétrique
-
Couvertures
- toit à longs pans
- pignon
- croupe
-
Statut de la propriétépropriété de la commune
- (c) Inventaire général, ADAGP
- (c) Inventaire général, ADAGP
- (c) Inventaire général, ADAGP
- (c) Inventaire général, ADAGP
- (c) Inventaire général, ADAGP
- (c) Inventaire général, ADAGP
- (c) Inventaire général, ADAGP
- (c) Inventaire général, ADAGP
- (c) Inventaire général, ADAGP
- (c) Inventaire général, ADAGP
- (c) Inventaire général, ADAGP
- (c) Inventaire général, ADAGP
- (c) Inventaire général, ADAGP
- (c) Inventaire général, ADAGP
- (c) Inventaire général, ADAGP
- (c) Inventaire général, ADAGP
- (c) Inventaire général, ADAGP
- (c) Inventaire général, ADAGP
- (c) Inventaire général, ADAGP
- (c) Inventaire général, ADAGP
- (c) Inventaire général, ADAGP
Date(s) d'enquête :
1968;
Date(s) de rédaction :
1968,
1974
Enquêteur Inventaire