Enquêteur Inventaire
Dossier d’œuvre architecture IA00003270
| Réalisé par
;
- étude d'inventaire
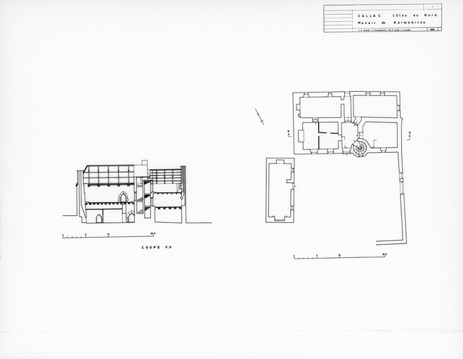
Manoir, Kermabilou (Callac)
Œuvre étudiée
Auteur
Dossier non géolocalisé
Localisation
-
Aire d'étude et canton
Callac
-
Commune
Callac
-
Lieu-dit
Kermabilou
-
Cadastre
1968
G1
166
-
Dénominationsmanoir
-
Parties constituantes non étudiéesédifice agricole
Ce dossier correspond à une transcription numérique d’éléments d’enquêtes antérieures à 2000. Tout enrichissement est le bienvenu
-
Période(s)
- Principale : limite 15e siècle 16e siècle
-
Murs
- granite
- grès
- schiste
-
Toitsardoise
-
Étages1 étage carré
-
Élévations extérieuresélévation à travées
-
Couvertures
- toit à longs pans
- croupe
- pignon couvert
- pignon découvert
- noue
-
Escaliers
- escalier demi-hors-oeuvre : escalier en vis sans jour
-
Statut de la propriétépropriété privée
- (c) Inventaire général, ADAGP
- (c) Inventaire général, ADAGP
- (c) Inventaire général, ADAGP
- (c) Inventaire général, ADAGP
- (c) Inventaire général, ADAGP
- (c) Inventaire général, ADAGP
- (c) Inventaire général, ADAGP
- (c) Inventaire général, ADAGP
- (c) Inventaire général, ADAGP
- (c) Inventaire général, ADAGP
- (c) Inventaire général, ADAGP
- (c) Inventaire général, ADAGP
- (c) Inventaire général, ADAGP
- (c) Inventaire général, ADAGP
- (c) Inventaire général, ADAGP
- (c) Inventaire général, ADAGP
- (c) Inventaire général, ADAGP
- (c) Inventaire général, ADAGP
- (c) Inventaire général, ADAGP
- (c) Inventaire général, ADAGP
- (c) Inventaire général, ADAGP
- (c) Inventaire général, ADAGP
- (c) Inventaire général, ADAGP
- (c) Inventaire général, ADAGP
Date(s) d'enquête :
1968;
Date(s) de rédaction :
1968,
1974
Dossiers de synthèse
Enquêteur Inventaire