Ce dossier correspond à une transcription numérique d’éléments d’enquêtes antérieures à 2000. Tout enrichissement est le bienvenu.
Dossier d’œuvre architecture IA00005495
| Réalisé par
;
- pré-inventaire
Chapelle Notre-Dame, Berven (Plouzévédé)
Œuvre étudiée
Auteur
(reproduction)
Dossier non géolocalisé
Localisation
-
Aire d'étude et canton
Plouzévédé - Plouzévédé
-
Commune
Plouzévédé
-
Lieu-dit
Berven
-
Cadastre
-
Dénominationschapelle
-
Vocablesnotre-Dame
-
Parties constituantes non étudiéesenclos, fontaine de dévotion
Chapelle construite à partir de 1573 par l' atelier du château de Kerjean ; sablière datée 1573 ; clocher en 1576 ; nef en 1580 (inscription sur le mur nord) ; clôture du jubé en 1601 ; sablières du choeur en 1605, portant l' inscription : M LAURENT BREZEL R Y GYADER E CLEGUER FABRIQUES AN LAN 1605.
-
Période(s)
- Principale : 3e quart 16e siècle
- Principale : 4e quart 16e siècle
- Principale : 1er quart 17e siècle
-
Dates
- 1573, porte la date
- 1576, porte la date
- 1580, porte la date
- 1601, porte la date
- 1605, porte la date
-
Murs
- granite
- pierre de taille
-
Toitsardoise
-
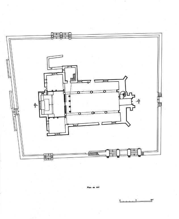
Plansplan en croix latine
-
Étages3 vaisseaux
-
Couvrements
- lambris de couvrement
-
Couvertures
- toit à longs pans
- dôme
- pignon découvert
- noue
-
Escaliers
- escalier dans-oeuvre : escalier en vis sans jour
-
Typologiesclocher de type léonard
-
Statut de la propriétépropriété de la commune
-
Intérêt de l'œuvreà signaler
-
Éléments remarquablesportail, jubé
-
Protectionsclassé MH, 1862
classé MH, 1909/06/14
classé MH, 1909/07/23
classé MH, 1968/11/27
-
Référence MH
- (c) Inventaire général, ADAGP
- (c) Inventaire général, ADAGP
- (c) Inventaire général, ADAGP
- (c) Inventaire général, ADAGP
- (c) Inventaire général, ADAGP
- (c) Inventaire général, ADAGP
- (c) Inventaire général, ADAGP
- (c) Inventaire général, ADAGP
- (c) Inventaire général, ADAGP
- (c) Inventaire général, ADAGP
- (c) Inventaire général, ADAGP
- (c) Inventaire général, ADAGP
- (c) Inventaire général, ADAGP
- (c) Inventaire général, ADAGP
- (c) Inventaire général, ADAGP
- (c) Inventaire général, ADAGP
- (c) Inventaire général, ADAGP
- (c) Inventaire général, ADAGP
- (c) Inventaire général, ADAGP
- (c) Inventaire général, ADAGP
- (c) Inventaire général, ADAGP
Date(s) d'enquête :
1971;
Date(s) de rédaction :
1971
Photographe à l'Inventaire