Photographe à l'Inventaire
Dossier d’œuvre architecture IA00005919
| Réalisé par
;
- inventaire topographique
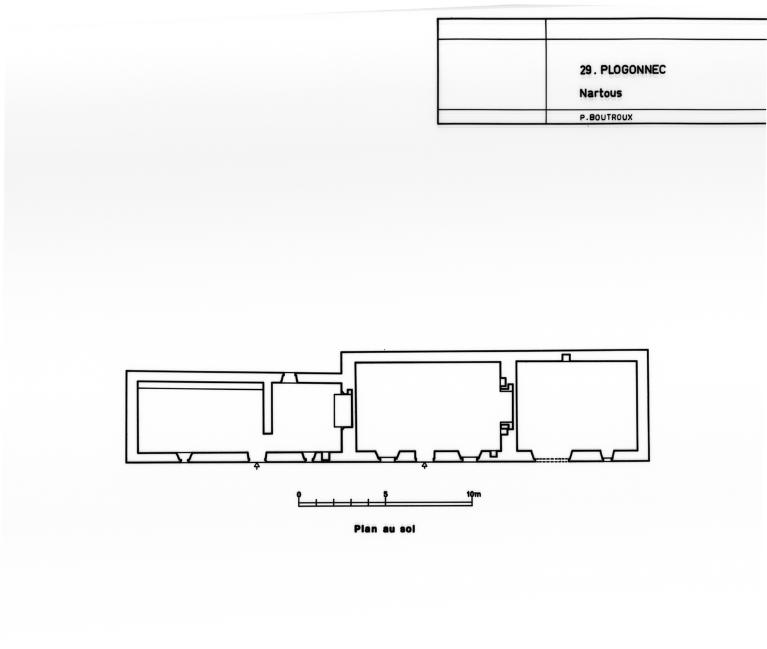
Ferme, le Nartous (Plogonnec)
Œuvre étudiée
Auteur
Dossier non géolocalisé
Localisation
-
Aire d'étude et canton
Douarnenez - Douarnenez
-
Commune
Plogonnec
-
Lieu-dit
Nartous (le)
-
Cadastre
1981
ZK
49
-
Dénominationsferme
-
Parties constituantes non étudiéespuits
Ce dossier correspond à une transcription numérique d’éléments d’enquêtes antérieures à 2000. Tout enrichissement est le bienvenu.
Inscription : M JEAN LE HENAF P 1663.
-
Période(s)
- Principale : 3e quart 17e siècle
-
Dates
- 1663, porte la date
-
Murs
- granite
- pierre de taille
-
Toitsardoise
-
Étages1 étage carré
-
Élévations extérieuresélévation à travées
-
Couvertures
- toit à longs pans
- pignon couvert
-
Escaliers
- escalier intérieur : escalier tournant à retours
-
Statut de la propriétépropriété privée
- (c) Inventaire général, ADAGP
- (c) Inventaire général, ADAGP
- (c) Inventaire général, ADAGP
- (c) Inventaire général, ADAGP
- (c) Inventaire général, ADAGP
Date(s) d'enquête :
1980;
Date(s) de rédaction :
1980,
1984
Castel Yves-Pascal
Castel Yves-Pascal
Cliquez pour effectuer une recherche sur cette personne.
Articulation des dossiers
Photographe à l'Inventaire