Photographe à l'Inventaire
Dossier d’œuvre architecture IA00005925
| Réalisé par
- inventaire topographique
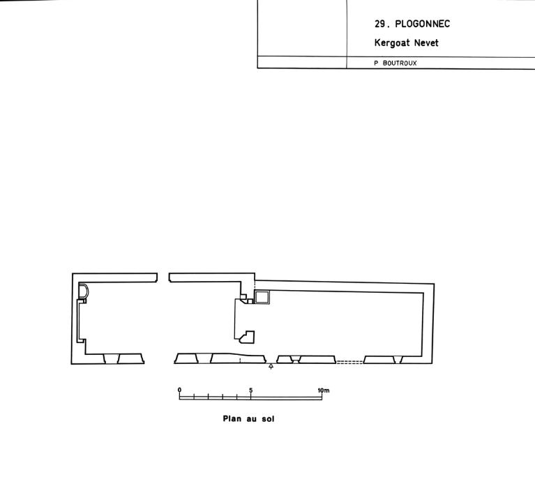
Remise Agricole, Kergoat Nevet (Plogonnec)
Œuvre étudiée
Auteur
Dossier non géolocalisé
Localisation
-
Aire d'étude et canton
Douarnenez - Douarnenez
-
Commune
Plogonnec
-
Lieu-dit
Kergoat Nevet
-
Cadastre
1982
XB
61
-
Dénominationsremise agricole
Ce dossier correspond à une transcription numérique d’éléments d’enquêtes antérieures à 2000. Tout enrichissement est le bienvenu.
-
Période(s)
- Principale : 1er quart 19e siècle
- Principale : 3e quart 19e siècle
-
Dates
- 1802, porte la date
- 1809, porte la date
- 1862, porte la date
-
Murs
- granite
- pierre de taille
-
Toitsardoise
-
Étages1 étage carré
-
Élévations extérieuresélévation à travées
-
Couvertures
- toit à longs pans
- pignon découvert
-
Escaliers
- escalier de distribution extérieur : escalier droit
-
Statut de la propriétépropriété privée
- (c) Inventaire général, ADAGP
- (c) Inventaire général, ADAGP
- (c) Inventaire général, ADAGP
Date(s) d'enquête :
1980;
Date(s) de rédaction :
1980,
1984
Castel Yves-Pascal
Castel Yves-Pascal
Cliquez pour effectuer une recherche sur cette personne.
Articulation des dossiers
Photographe à l'Inventaire