Dossier non géolocalisé

Localisation
  • Aire d'étude et canton Rennes Métropole - Guichen
  • Commune Laillé
  • Cadastre 1981 AB 269
  • Dénominations
    chapelle, église paroissiale
  • Vocables
    Saint-Pierre
  • Parties constituantes non étudiées
    croix monumentale

Inventaire de 1968 : Selon Paul Banéat, l'emplacement de l'église actuelle était occupé par une chapelle qui fut agrandie vers 1635 pour devenir l'église paroissiale. La nef date de cette époque, elle a été remaniée au milieu du 19e siècle, durant la campagne de travaux effectuée par Jacques Mellet (transept et chœur de 1851, tour de clocher de 1852) . Cadran solaire daté 1733.

(Isabelle Barbedor, Véronique Orain, Inventaire des églises et chapelles d'Ille-et-Vilaine, 1994)

La présence d'une chapelle à cet emplacement est attestée dès 1518. Cet édifice a été modifié au cours du 17e siècle : en 1622, le chœur primitif est allongé et surélevé, la chapelle se voit dotée d'une sacristie et d'un nouveau clocher. En 1635, la nef est élargie, son agrandissement nécessita la construction de contreforts extérieurs. Ce fut à partir de ce siècle que la chapelle devint église paroissiale.

Ce n'est qu'à partir de la seconde moitié du 19e siècle que l'église prend sa forme actuelle. Monsieur Charles de la Bourdonnaye et Mademoiselle Marie Charlotte de la Bourdonnaye participent au financement des travaux qui se déroulent de 1850 à 1853. Ceux-ci ont été orchestrés par l'architecte Anger de la Loriais. Un transept saillant a été ajouté à l'édifice, ce qui a permis de dessiner un plan en croix latine. Le chœur est reculé de quelques mètres et il est doté de deux chapelles latérales. On remplace également le clocher qui se trouve alors en bas de la nef actuelle. En remerciement à leur don Monsieur et Mademoiselle de la Bourdonnaye ont été inhumés dans l'église dont il reste deux stalles dans les bras du transept.

Des travaux continuent sous la direction de l'architecte Jacques Mellet entre 1870 et 1871. Du plâtre est appliqué à l'intérieur de la nef. La nef est revêtue d'un blanc uniforme, comme il en était coutume au 19e siècle. À cette même période, les chapelles et le chœur de style gothique ont été reconstruites dans le style roman afin d'harmoniser l'ensemble de l'édifice. L'église a gardé sa sacristie construite au 18e siècle.

Au début du 20e siècle, le clocher menaçait de s'effondrer. La décision est prise par les membres du conseil municipal de le reconstruire en 1920. Mais ces travaux ne commenceront qu'en 1940. La toiture est refaite en grande partie en 1942.

Plus récemment, en 2002 et 2004, les dernières restaurations de l'église ont été effectuées. Aujourd'hui, l'église est inscrite au patrimoine des églises à découvrir en Ille-et-Vilaine.

(Déborah De Sousa Figueiredo, inventaire topographique, 2016)

  • Période(s)
    • Secondaire : 2e quart 17e siècle
    • Secondaire : milieu 19e siècle
    • Secondaire : 3e quart 19e siècle
    • Secondaire : 2e quart 20e siècle
    • Secondaire : 1er quart 21e siècle
  • Dates
    • 1635, porte la date
    • 1733, porte la date
    • 1852, daté par source
  • Auteur(s)

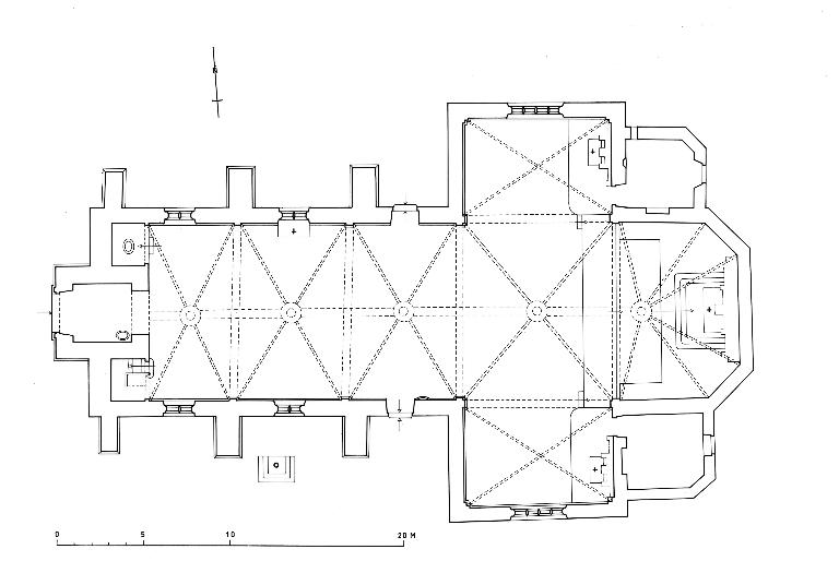
Plan en croix latine, fausse voûte, fausse voûte d'ogives, clocher-porche recouvert d'une flèche en ardoise, chevet à pans coupés. (Isabelle Barbedor, Véronique Orain, Inventaire des églises et chapelles d'Ille-et-Vilaine, 1994)

Située au centre du bourg de Laillé, place Andrée Récipon, cette église est construite en schiste pourpre et en grès. Elle est couverte d'une toiture en ardoises avec un léger coyau.

Son plan est en forme de croix latine dont la nef mesure vingt mètres de long et dix mètres de large.

Au niveau de la façade ouest, on trouve une tour-porche permettant d'entrer dans l'église. Elle est en demi-saillie par rapport au pignon aveugle, et divisée en trois niveaux délimités par des corniches en calcaire. Au premier niveau, on trouve la porte d'entrée en plein cintre encadrée de pilastres soutenant un fronton triangulaire au centre duquel prend place la date de 1852 (date de construction de la tour). Le second niveau est composé d'un grand oculus en calcaire. Enfin, chaque face du dernier niveau comporte une baie en plein cintre en calcaire contenant des abat-sons en bois. C'est à ce dernier niveau que l'on trouve la chambre des cloches. La tour est surmontée d'une flèche à six faces.

La nef est divisée en trois travées délimitées par des contreforts massifs. Au centre de chaque travée prend place une baie en plein cintre en calcaire ornées de vitraux. La dernière travée de la façade sud est percée d'une porte rectangulaire dont le linteau est en plate-bande en calcaire. De plus, sur le dernier contrefort de cette même façade se trouve un cadran solaire datant de 1733. Il faut également noter l'inscription de la date 1635 au-dessus de la baie centrale de la façade nord de la nef, qui correspond à la date où la nef est élargie.

Le transept, saillant, est éclairé par deux grandes baies en plein cintre avec quatre lancettes, une rose et deux trilobes. L'arc en plein cintre de la baie est surmonté d'un arc brisé qui pourrait être les traces laissées lors d'une réfection.

Le chevet de l'église a une forme polygonale dont le fond est aveugle. L'éclairage est donc fait à l'aide de deux baies en plein cintre avec deux lancettes situées sur les côtés nord et sud du chevet. Deux chapelles prennent place de part et d'autre de ce chevet dont une sacristie au sud qui est éclairée par une baie rectangulaire.

L'intérieur de la nef unique est couvert d'une voûte en berceau enduit à l'aide de plâtre. Les travées sont alors délimitées par des arcs en plein cintre qui reposent sur des culs-de-lampe. Une corniche à modillons court tout en haut des murs de la nef. Le mur ouest de la nef est ouvert de trois arcs en plein cintre. L'arc au sud donne accès aux escaliers pour monter au premier étage de la tour. Ce premier étage s'ouvrait autrefois sur la nef par une baie en plein cintre aujourd'hui condamnée mais dont l'emplacement est encore visible. L'arc au nord abrite un petit autel. Enfin, l'arc au centre est fermé par la porte principale surmontée d'une croix en bois. À l'extrême opposé, le chœur possède un cul-de-four à cinq pans.

L'intérieur de l'église est décoré de trois retables : un dans le chœur et un dans chaque bras du transept. Dans le bras du transept nord, le tableau représente la rencontre entre Sainte-Élisabeth et la Vierge. Au sud, le tableau est encore dans un registre religieux avec un homme barbu aux cheveux longs. Enfin dans le chœur, le tableau représente le Christ en croix. Les baies de la nef sont toutes ornées de vitraux figurés tandis que ceux du transept ne comportent que des motifs géométriques.

(Déborah De Sousa Figueiredo, inventaire topographique, 2016)

  • Murs
    • schiste
    • calcaire
    • grès
    • moellon
    • pierre de taille
    • appareil mixte
  • Toits
    ardoise
  • Plans
    plan en croix latine
  • Étages
    1 vaisseau
  • Couvrements
    • fausse voûte d'ogives
  • Élévations extérieures
    élévation à travées
  • Couvertures
    • toit à longs pans
    • flèche polygonale
    • pignon découvert
    • croupe polygonale
    • noue
  • Typologies
    chevet à pans coupés ; clocher-porche ; chevet à pans coupés
  • État de conservation
    restauré
  • Techniques
    • vitrail
    • sculpture
  • Représentations
    • armoiries
  • Précision représentations

    Armes martelées.

  • Mesures
    • l : 20 m
    • la : 10 m
  • Statut de la propriété
    propriété publique

Annexes

  • Etude d'inventaire sur le canton de Guichen, 1967 :
Date(s) d'enquête : 1967; Date(s) de rédaction : 1968, 1994, 2016