La maison de marchand de toiles du Cosquer est environnée de fermes-blanchisseries, propriétés des Du Couédic du Cosquer, famille importante et puissamment représentée dans le commerce des toiles.
- inventaire topographique, Uzel
- enquête thématique régionale, Inventaire du patrimoine lié à l’histoire toilière du Quillio
Dossier non géolocalisé
-
Aire d'étude et canton
Uzel - Uzel
-
Commune
Le Quillio
-
Lieu-dit
le Cosquer
-
Cadastre
1987
ZC
12a
-
Dénominationsmaison
-
Genrede maître
-
Parties constituantes non étudiéescour, dépendance, portail
Maison construite en 1738 (porte la date) pour Olivier du Couedic du Cosquer (inscription), fabricant-marchand de toiles au Quillio, marié en 1715 à Marie-Anne Frelaut, puis en 1723 à Marie-Anne Tilly. Olivier du Couedic du Cosquer est délibérant au sein du général du Quillio, entre 1717 et 1756, comme son père Elouan avant lui. Ce dernier est le premier du nom à porter le titre de sieur du Cosquer (à partir de 1719). Les dépendances qui bordent la cour au sud et à l'ouest sont construites au cours du 18e siècle, ainsi que le long bâtiment édifié au nord-est, en retour d'équerre de la maison, peut-être à usage de "pilerie" (atelier pour apprêter et conditionner les toiles). En février 2022, un incendie ravage la maison, détruisant les aménagements intérieurs, une partie des murs de refend, les charpentes et deux lucarnes.
-
Période(s)
- Principale : 2e quart 18e siècle
-
Dates
- 1738, porte la date
-
Auteur(s)
-
Personnalité :
Du Couedic du Cosquer Oliviercommanditaire signature, attribution par sourceDu Couedic du Cosquer OlivierCliquez pour effectuer une recherche sur cette personne.
Olivier Du Couedic du Cosquer est fabricant-marchand de toiles au Quillio et avocat du Roi en 1765. Marié à Marie-Anne Frelaut en 1715, puis à Marie-Anne Tilly en 1723.
-
Personnalité :
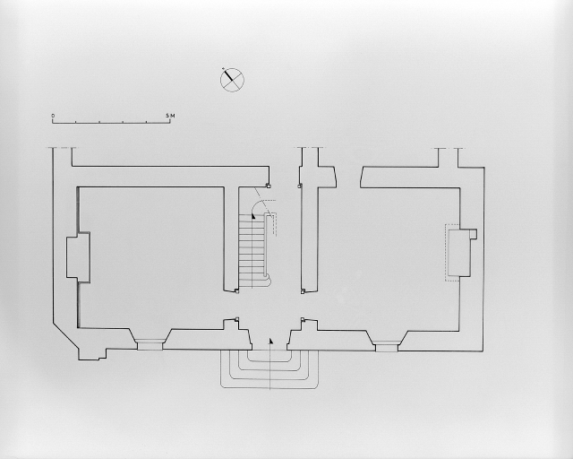
La maison donne sur une cour fermée par des murs et des dépendances. Elle est construite en fin moellon de schiste avec encadrements de baies en granite. Son élévation est ordonnancée, à trois travées, avec lucanes en pierre à fronton cintré et balcon soutenu par des consoles à tête de sphinx. Avant l'incendie, le vestibule d'entrée contenait un escalier en bois, tournant à retours, construit entre deux murs de refend. Le grand appentis nord à usage de cellier était accessible depuis le rez-de-chaussée et l'étage de la maison. Perpendiculairement à cet appentis, une longue dépendance est construite au nord, peut-être à usage de "pilerie" (atelier pour conditionner les toiles). A l'ouest de la cour, l'entrée principale est marquée par des piliers ornés de pot à feu. L'angle sud-ouest de la maison présente un pan coupé sur les trois quarts de la hauteur pour le protéger du passage des voitures à chevaux. En face, un portail couvert est inclus dans une grande dépendance qui ferme la cour à l'est. Une remise ouverte sur poteau de bois est établie à l'extérieur de la cour, sur l'ancienne aire à battre, à l'est.
-
Murs
- schiste moellon
- granite pierre de taille
-
Toitsardoise
-
Étages1 étage carré
-
Élévations extérieuresélévation ordonnancée
-
Couvertures
- toit à longs pans
- pignon couvert
-
Escaliers
- escalier tournant à retours avec jour en charpente
-
Typologiesmaison de type ternaire, à balcon. Ancienne cour fermée
-
État de conservationmauvais état
-
Statut de la propriétépropriété privée
-
Intérêt de l'œuvreà signaler
- (c) Région Bretagne
- (c) Inventaire général, ADAGP
- (c) Inventaire général, ADAGP
- (c) Inventaire général, ADAGP
- (c) Inventaire général, ADAGP
- (c) Inventaire général, ADAGP
Documents d'archives
Bibliographie
-
Région Bretagne (Service de l'Inventaire du patrimoine culturel)
MARTIN, Jean. Toiles de Bretagne, La manufacture de Quintin, Uzel et Loudéac, 1670-1830. Rennes : Presses Universitaires de Rennes, 1998.
Chargée d'études Inventaire
Chargée d'études Inventaire