Photographe à l'Inventaire
- enquête thématique régionale, Inventaire des fortifications littorales de Bretagne
Dossier non géolocalisé
-
Aire d'étude et canton
Bretagne Nord
-
Commune
Roscanvel
-
Lieu-dit
Pointe des Capucins
-
Dénominationsabri, batterie, blockhaus, édifice logistique, poste d'observation
-
AppellationsBatterie de Keradennec
-
Période(s)
- Principale : 4e quart 19e siècle
- Secondaire : 1er quart 20e siècle
- Secondaire : 2e quart 20e siècle
-
Dates
- 1884, daté par source, daté par travaux historiques
- 1885, daté par travaux historiques
- 1906, daté par travaux historiques
-
Murs
- maçonnerie
- béton armé
-
Toitsbéton en couverture, terre en couverture
-
Plansplan rectangulaire régulier
-
Étagessous-sol, rez-de-chaussée
-
Couvertures
- terrasse
-
État de conservationdésaffecté, envahi par la végétation, mauvais état
-
Statut de la propriétépropriété de l'Etat
-
Intérêt de l'œuvrevestiges de guerre, à signaler
- (c) Inventaire général, ADAGP
- (c) Inventaire général, ADAGP
- (c) Inventaire général, ADAGP
- (c) Inventaire général, ADAGP
- (c) Inventaire général, ADAGP
- (c) Inventaire général, ADAGP
- (c) Inventaire général, ADAGP
- (c) Inventaire général, ADAGP
- (c) Inventaire général, ADAGP
- (c) Inventaire général, ADAGP
- (c) Inventaire général, ADAGP
- (c) Inventaire général, ADAGP
- (c) Inventaire général, ADAGP
- (c) Inventaire général, ADAGP
- (c) Inventaire général, ADAGP
- (c) Inventaire général, ADAGP
- (c) Inventaire général, ADAGP
- (c) Inventaire général, ADAGP
- (c) Inventaire général, ADAGP
- (c) Inventaire général, ADAGP
- (c) Inventaire général, ADAGP
- (c) Inventaire général, ADAGP
- (c) Inventaire général, ADAGP
- (c) Inventaire général, ADAGP
- (c) Inventaire général, ADAGP
- (c) Inventaire général, ADAGP
- (c) Inventaire général, ADAGP
- (c) Inventaire général, ADAGP
- (c) Inventaire général, ADAGP
- (c) Inventaire général, ADAGP
- (c) Inventaire général, ADAGP
- (c) Inventaire général, ADAGP
- (c) Inventaire général, ADAGP
- (c) Inventaire général, ADAGP
- (c) Inventaire général, ADAGP
- (c) Inventaire général, ADAGP
- (c) Inventaire général, ADAGP
- (c) Inventaire général, ADAGP
- (c) Inventaire général, ADAGP
- (c) Inventaire général, ADAGP
- (c) Inventaire général, ADAGP
- (c) Inventaire général, ADAGP
- (c) Inventaire général, ADAGP
- (c) Inventaire général, ADAGP
- (c) Inventaire général, ADAGP
- (c) Inventaire général, ADAGP
- (c) Inventaire général, ADAGP
- (c) Inventaire général, ADAGP
- (c) Inventaire général, ADAGP
- (c) Inventaire général, ADAGP
- (c) Inventaire général, ADAGP
- (c) Inventaire général, ADAGP
- (c) Inventaire général, ADAGP
- (c) Inventaire général, ADAGP
- (c) Inventaire général, ADAGP
- (c) Inventaire général, ADAGP
- (c) Inventaire général, ADAGP
- (c) Inventaire général, ADAGP
- (c) Inventaire général, ADAGP
- (c) Inventaire général, ADAGP
- (c) Inventaire général, ADAGP
- (c) Inventaire général, ADAGP
- (c) Inventaire général, ADAGP
- (c) Inventaire général, ADAGP
- (c) Inventaire général, ADAGP
- (c) Inventaire général, ADAGP
- (c) Inventaire général, ADAGP
- (c) Inventaire général, ADAGP
- (c) Inventaire général, ADAGP
- (c) Inventaire général, ADAGP
- (c) Inventaire général, ADAGP
- (c) Inventaire général, ADAGP
- (c) Inventaire général, ADAGP
- (c) Inventaire général, ADAGP
- (c) Inventaire général, ADAGP
- (c) Inventaire général, ADAGP
- (c) Inventaire général, ADAGP
- (c) Inventaire général, ADAGP
- (c) Inventaire général, ADAGP
- (c) Inventaire général, ADAGP
- (c) Inventaire général, ADAGP
- (c) Inventaire général, ADAGP
- (c) Inventaire général, ADAGP
- (c) Inventaire général, ADAGP
- (c) Inventaire général, ADAGP
- (c) Inventaire général, ADAGP
- (c) Inventaire général, ADAGP
- (c) Inventaire général, ADAGP
- (c) Inventaire général, ADAGP
Chargé d'études d'Inventaire du patrimoine à la Région Bretagne.
Fait partie de
Batterie d'artillerie de côte dite batterie de 240 mm à tir rapide de Toulbroc'h (Locmaria-Plouzané)
Lieu-dit : Toulbroc'h
Batterie d'artillerie de côte dite batterie de mortier de 30 cm de Toulbroc'h, Le Cosquer (Plouzané)
Lieu-dit : Toulbroc'h, Le Cosquer
Batterie de 100 mm à tir rapide (4 canons M de 100 mm modèle 1881 TR sur affûts Vavasseur puis 4 canons M de 100 mm modèle 1897 TR sur affûts M modèle 1897 à pivot central), Pointe des Capucins (Roscanvel)
Lieu-dit : Pointe des Capucins
Batterie de 47 mm. à tir rapide (4 canons M de 47 mm modèle 1885 TR sur affûts M modèle 1885 crinoline), Ilot des Capucins (Roscanvel)
Lieu-dit : Ilot des Capucins
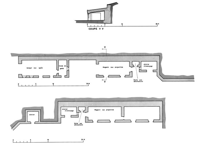
Magasin à poudre sous roc, Pointe des Capucins (Roscanvel)
Lieu-dit : Pointe des Capucins
Chargé d'études d'Inventaire du patrimoine à la Région Bretagne.