Dossier d’œuvre architecture IA29133591 | Réalisé par
  • enquête thématique régionale, Lycées en Bretagne
Cité scolaire de l'Iroise, dite aussi lycée et collège de l'Iroise, anciennement lycée de Saint-Marc (Brest)
Œuvre étudiée

Dossier non géolocalisé

Localisation
  • Aire d'étude et canton Bretagne
  • Commune Brest
  • Adresse 7 Place de Strasbourg
  • Dénominations
    lycée, collège

La cité scolaire de l'Iroise est un établissement qui regroupe un lycée et un collège, sans formation professionnelle, ni post-bac. Implanté, d'abord en baraques, dès les lendemains de la Seconde Guerre mondiale, sur le territoire de l'ancienne commune de Saint-Marc. il est au cœur d'un quartier très urbanisé, au nord-est du centre de Brest.

La construction d'un nouvel établissement, sur le même site que les baraques, à partir de 1965 à 1969, a été confiée à l'architecte brestois Jean Lacaille. Le plan de masse s'adapte à la forte déclivité du terrain et articule des bâtiments scolaires très normés autour d'un patio paysager qui accueille, en son centre, une "fontaine mobile", décoration au titre du 1% artistique créée par le sculpteur Philippe Hiquily.

Des équipements sportifs municipaux (terrains, gymnase, piscine) jouxtent le lycée à l'est.

Un CDI a été ajouté, en 1994, selon les plans de l'architecte Gildas Nédélec.

La cité scolaire de l'Iroise regroupe un lycée et un collège. Elle est l'héritière de l'école primaire supérieure (EPS) qui existait à Brest avant la Seconde Guerre mondiale et avait été transformée en collège moderne, suite à la suppression des EPS, par le régime de vichy, en 1941 (loi Carcopino, du nom du secrétaire d'Etat à l'Instruction publique et à la jeunesse). L'intensification des bombardements sur Brest nécessite le repli de l'établissement dans la Sarthe.

Du collège moderne au lycée annexe : l'établissement en baraques pour les élèves de Saint-Marc et de l'est de Brest

Le grand projet scolaire de la Reconstruction, à Brest, est le regroupement dans une seule cité scolaire mixte, à Kerichen, des enseignements secondaires classiques, modernes et techniques. Les établissements sont d'abord implantés dans des baraques, place de l'Harteloire. Le manque d'espace conduit à réserver ce dernier emplacement au lycée classique et moderne et à installer, également en baraques, en différents quartiers de la ville, les autres enseignements secondaires. En 1946, la municipalité implante ainsi le collège moderne au lieu dit Le Petit Paris, route de Quimper, sur le territoire de l'ancienne commune de Saint-Marc, rattachée à Brest, l'année précédente. Un traité constitutif, signé le 21 avril 1947, crée, pour 10 ans, de façon rétroactive (du 1er janvier 1946 au 31 décembre 1951), le "collège moderne de garçons et de filles de la ville de Brest", dont les cours ont lieu dans des baraques modulaires construites en ciment. Fort d'environ 600 élèves et doté, entre autres, de deux sections de mécaniciens pont et machines, l'établissement devient, en 1953, par lettre ministérielle (18 septembre), une annexe du lycée de Brest. L'évolution statutaire vers un lycée de plein exercice est remise à plus tard. A cette date, c'est en effet l'annexe de Landerneau du lycée de Brest qui devient autonome.

La construction industrialisée d'un établissement neuf accompagne la transition vers un lycée "autonome"

Cette même année 1963 est déterminante pour l'avenir de l'établissement. Le rigoureux hiver, pendant lequel l'encre gèle dans les classes, et l'effondrement d'un plafond, engendrent plusieurs fermetures de l'établissement. Après que la presse a dénoncé les conditions "lamentables" d'accueil des élèves, et que les enseignants et parents d'élèves ont manifesté, le samedi 26 octobre, à l'occasion de la venue à Brest du ministre de l'Éducation nationale, Christian Fouchet, ce dernier annonce la construction d'une cité scolaire neuve.

Les études de celle-ci étaient d'ailleurs bien engagée, puisque le ministère avait nommé, dès 1961, l'architecte jean Lacaille, pour mener à bien cette opération. La Ville étudiait depuis le printemps la délégation de maîtrise d'ouvrage à l'Etat. Le compte-rendu de la visite de l'ingénieur attaché au rectorat, le 18 avril 1963, en présence de l'adjoint au maire délégué à l'enseignement, M. Holley, précise en effet les avantages de cette formule pour la commune (participation forfaitaire, insensible aux éventuels surcoûts, de "2 à 3 millions de francs", sur un total de 10 millions) et indique : "M. Lacaille sera confirmé dans sa mission. (...) Le Ministère de l'Education Nationale ayant procédé à un concours dit "Conception - Réalisation", il est probable que le lycée de Saint-Marc sera adapté à partir de plans-types, en fonction du terrain et du programme." Le 22 avril 1963, le Conseil municipal délibère dans ce sens. Le programme technique est arrêté le 27 juillet 1963, sur la base du programme pédagogique du 20 juin de cette année-là.

Ce dernier prévoit la construction d'un lycée classique et moderne de second cycle de 1200 élèves et d'une annexe de premier cycle de 800 élèves, sans internat - les conséquences du sous dimensionnement de ce dernier sont encore sensibles en 2021. La première pierre est posée, le 18 mai 1964. Les travaux se déroulent en trois tranches, de 1964 à 1968. Ils débutent par l'externat du premier cycle et la restauration scolaire ; suivent le bâtiment du second cycle, en deux temps, puis le bâtiments administratifs et les logements (voir photographies aériennes "Heurtier" dans les illustrations). La convention entre la Ville et l'Etat, adoptée par le Conseil municipal, le 14 septembre 1964, précise que le coût total de la construction s'élève à 11,12 millions de francs, que la participation de la Ville est de 17,14 %, en plus de l'apport du terrain pour lequel elle espère être subventionnée à 50%.

Parallèlement, sur la majeure partie de la parcelle, située à l'est de la cité scolaire, est construit un vaste complexe sportif, sous maîtrise d'ouvrage municipale. Par délibération du conseil, le 5 avril 1965, la ville s'engage à mettre les installations sportives "en priorité à la disposition des élèves pendant les heures de scolarité". M. Lacaille en est également l'architecte (voir dossier d'inventaire sur le "centre sportif Jean Guéguéniat" sur ce même site internet ; la réception provisoire des travaux est réalisée, en 1972).

La cité scolaire aujourd'hui

Un décret ministériel du 10 juillet 1968 officialise la transformation de "l'annexe" en lycée "autonome", sous le nom de "Lycée d'Etat classique et moderne de Saint-Marc", avec CES adjoint. En 1972, le collège Levot est rattaché à l'établissement qui, en 1983, prend le nom de "Lycée et collège de l'Iroise", mettant fin à d'éventuelles confusions entre le nom du quartier, ancienne commune, de Saint-Marc et le saint catholique.

Les principales évolutions du bâti sont les suivantes :

- en 1993, restructuration du service de restauration et sa transformation en Self ;

- en 1994, construction d'un CDI selon les plans de l'architecte Gildas Nedélec, qui modifie sensiblement le plan de masse, en occupant un tiers de la surface du patio et en le fermant totalement. La décoration au titre du 1% artistique est au centre du bassin de ce patio (Philippe Hiquily, 1973, voir dossier sue ce même site internet).

- en 1994, construction de deux salles de langues,

- en 2007, construction d'un nouveau gymnase (Patrice Liard et Christine Tanguy, architectes).

- en 2021, implantation d'un bâtiment d'ateliers pour les agents.

La cité scolaire accueille, en 2021, environ 1200 élèves, répartis pour moitié entre collège et lycée. C'est un établissement sans internat ni formation d'enseignement supérieur, mais qui prépare à l'ensemble des baccalauréats généraux.

Par-delà les références documentaires indiquées dans ce dossier, cet historique doit beaucoup à l'article d'Olivier Corre, historien et enseignant au lycée, dans Les Cahiers de l'iroise, (références complètes ci-dessous).

Le "lycée" du quartier urbain de Saint-Marc, implantée près de l'une des entrées majeures de la ville.

La cité scolaire de l'Iroise est située immédiatement au sud de la place de Strasbourg, dans un quartier urbanisé de Brest, correspondant à l'ancienne commune de Saint-Marc. L'établissement est desservi à proximité par le tramway et les bus urbains. Le quartier est à la fois commercial (rue Jean Jaurès, place de Strasbourg) et d'habitation (petits immeubles ; maisons individuelles).

Le traitement urbain et architectural de la place de Strasbourg est très ordonnancé : la place, en rotonde, est pensée comme une entrée importante de ville importante, à la confluence d'axes pénétrants, les rues de Paris et de Quimper, et d'axes majeurs du centre-ville : les rues Jean Jaurès et Sébastopol. L'arrivée depuis la rue de Paris ainsi que le pourtour de la place sont bordés d'immeubles formant un ensemble architectural homogène. Les élévations comptent trois niveaux plus un étage de combles à lucarnes. Les toitures en ardoise sont à forte pente. On peut y voir des références classiques, à l'architecture des ingénieurs militaires du 18e siècle, et régionalistes, dans la mesure où les toitures en ardoises sont très minoritaires dans l'architecture des immeubles de la Reconstruction à Brest. La cité scolaire se situe donc dans ce paysage d'entrée de ville mais ne participe pas de cette composition. L'architecte Jean Lacaille a en effet abandonné ce parti-pris (toitures en zinc, à faible pente). Il est vrai que le lycée est, à cause de la topographie, assez peu visible depuis la place et que les parements en granite sont, depuis ce point de vue, très prégnants. A l'ouest, il est caché par les immeubles de la rive est de la rue de Valmy, du même type que ceux du pourtour de la place de Strasbourg.

La parcelle originelle, sur laquelle avait été implantées des baraques pour héberger un collège moderne, a été divisée en deux selon un axe nord sud. A l'ouest se situe la cité scolaire, à l'est le plateau sportif et les équipements municipaux : gymnase Guéguéniat, Piscine Saint-Marc. Le stade de football Francis Le Blé jouxte cet ensemble, au nord-est.

Un plan de masse organisé autour d'un patio central et contraint par la déclivité du terrain.

La cité scolaire est composé d'un lycée et d'un collège. Elle héberge des fonctions d'externat, d'administration, de restauration, de santé, de logement de fonction mais pas d'internat pour les élèves.

Le terrain du lycée est en forte déclivité selon un axe nord sud. Des plateaux ont été aménagés de part et d'autres des bâtiments : celui de l'entrée, de l'accueil et de l'administration, celui du lycée et de sa cour, celui du collège, celui du réfectoire et du patio.

Le plan masse d'origine articule l'essentiel du bâti, hormis l'administration et la tour de logements, autour d'un patio central ouvert, mais bordé de galeries de circulation. Il était ainsi au cœur de la cité scolaire et paysager (pelouses, arbres, bassin). Au centre de ce dernier a été implantée, en 1973 une sculpture de Philippe Hiquily appelée "fontaine mobile". C'est la décoration au titre du 1% artistique de l'établissement. A l'est, le patio est jouxtée par la barre d'externat du collège. Au nord, par celle du lycée. A l'ouest, par les services de restauration.

Béton et granite : respect des normes scolaires et clin d'œil régionaliste.

Les deux barres d'externat, sont parallèles entre elles, décalées sur deux "plateaux" différents, et non jointives quoique reliées à l'origine par une galerie couverte. Elles sont d'orientation nord sud, épousant la pente du terrain. Elles respectent les normes scolaires mises en place pour favoriser l'industrialisation des constructions : structure poteaux poutres en béton armé, trame régulière et répétée d'1,75 mètre ; desserte des étages (trois sur rez-de-chaussée pour le lycée, deux pour le collège) ; dégagements centraux et des cages d'escalier situées aux extrémités (et au centre pour la barre du lycée, plus longue). Les toitures en pavillon à faible pente sont masquées par une large corniche en débord. Lorsque que l'on regarde les barres depuis le rez-de-chaussée, on peut penser à des toitures terrasses. Sur le plan de la modénature, le granite est très présent sur les pignons, une partie des façades, l'administration et les logements. Cette présence, clin d'œil régionaliste s'il en est, est particulièrement prégnante lorsque l'on regarde le lycée depuis l'entrée, place de Strasbourg.

L'entrée de l'établissement se situe au nord et donne directement sur l'administration, d'un seul niveau, que jouxte au sud une tourelle carrée de cinq niveaux, abritant des logements de fonction. La différence d'élévation est marquante dans cette composition qui, étant donné la déclivité du terrain, dissimule le reste de l'établissement qui est ainsi peu visible depuis la voie publique.

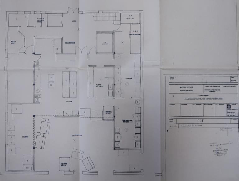
Le service de restauration est composé des cuisines, d'espaces de stockage et de service et des réfectoires. Les premières sont de plan carré et éclairées en leur centre par un lanternon. Les services et réfectoires forment un L accolé au sud et à l'est des cuisines.

Le patio a fortement évolué lors de l'implantation, sur le tiers de sa surface, d'un CDI en 1994. Il n'est ainsi plus bordé de galerie au nord. Celles du sud et de l'ouest ont en outre été vitrées. Les arbres ont beaucoup grandi apportant une autre modification du paysage et de l'écrin de la sculpture "fontaine mobile".

Un CDI construit en 1994.

En 1994, l'architecte Gildas Nédélec a donné les plans d'un CDI, dont l'architecture est en rupture avec celle des années 1960. Le nouveau bâtiment est implanté au sud de la barre d'externat du lycée, sur le tiers, environ, de la surface du patio. La salle du CDI proprement dit est rectangulaire et dotée d'une mezzanine. Au nord et à l'est de la salle de lecture sont situées trois salle d'étude ou de réunion. Les deux salles situées au nord, dont l'une a, un temps, servi de salle du Conseil d'administration, sont en partie sous une passerelle fermée et couverte qui permet de circuler entre l'externat du lycée et celui du collège.

Le paysage du lycée, où dominaient les bâtiments et les pelouses à l'origine, a beaucoup évolué car la croissance des arbres a progressivement modifié la perception des espaces verts et du patio. Les arbres importants sont bien présents, même si une rangée de peupliers a dû être abattue récemment.

Des collections pédagogiques intéressantes, à inventorier.

Le lycée et le collège possèdent des collections pédagogiques diversifiées (sciences physiques, minéralogie, sciences naturelles) qui ne sont pas encore inventoriées.

  • Murs
    • béton
  • Toits
    zinc en couverture
  • Plans
    plan rectangulaire régulier
  • Couvrements
  • Élévations extérieures
    élévation à travées
  • Couvertures
  • Escaliers
    • escalier dans-oeuvre
  • Jardins
    groupe d'arbres
  • Statut de la propriété
    propriété de la région, Code : 0290009C

Documents d'archives

  • Archives municipales et communautaires de Brest : 4 M 54. Lycée de l'Iroise (Saint-Marc).

    Archives municipales et communautaires de Brest : 4 M 54
  • Archives municipales et communautaires de Brest : 4 M 56. Lycée de l'Iroise (Saint-Marc). A. Terrains, 1956-1965

    Archives municipales et communautaires de Brest : 4 M 56
  • Archives municipales et communautaires de Brest : 192 W 63. Consultation et marchés / Iroise - Cuisine.

    Archives municipales et communautaires de Brest : 192 W 63
  • Archives municipales et communautaires de Brest : 4 M 57. Cité scolaire de l'Iroise : construction, travaux, ..., 1964-1972

    Archives municipales et communautaires de Brest : 4 M 57
  • Archives municipales et communautaires de Brest : 192 W 61. Construction de deux espaces langues et d'un CDI, 1991-1992.

    Archives municipales et communautaires de Brest : 192 W 61

Bibliographie

  • Corre [Olivier], "Du "Colmo" à la cité scolaire de l'Iroise. Une histoire de la massification de l'enseignement secondaire à Brest", Les Cahiers de l'Iroise, Hors-Série N° 9 - septembre 2021, pp. 103-140.

  • BRANCHEREAU, Jean-Pierre, CROIX, Alain, GUYVARC'H, Didier, PANFILI, Didier. Dictionnaire des lycées publics de Bretagne. Geriadur liseoù publik Breizh. Histoire, culture, patrimoine, Rennes, Presses universitaires de Rennes, 2012, 656 p.

Date(s) d'enquête : 2021; Date(s) de rédaction : 2021