Dossier d’œuvre architecture IA35000507 | Réalisé par
  • patrimoine industriel, Inventaire du patrimoine industriel d'Ille-et-Vilaine
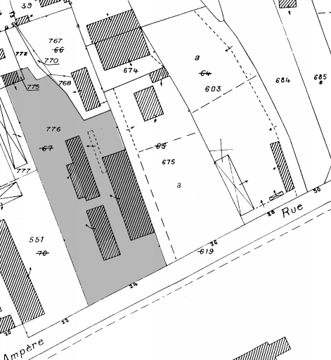
Usine de meubles Chapin Pierre, 26 rue Ampère (Dinard)
Œuvre étudiée

Dossier non géolocalisé

Localisation
  • Aire d'étude et canton Ille-et-Vilaine - Dinard
  • Commune Dinard
  • Adresse 26 rue Ampère
  • Cadastre 1992 K 775, 776
  • Dénominations
    usine de meubles
  • Appellations
    usine de meubles Chapin Pierre
  • Parties constituantes non étudiées
    atelier de fabrication

Cette usine de meubles de style est fondée en 1939. En 1971, les établissements Chapin Pierre travaillent à partir de diverses variétés de bois : merisier, chêne, châtaignier - aggloméré et contreplaqué. Ils en consomment 350 m3 par an. L'usine est spécialisée dans la fabrication de petites séries de meubles d'appartements et de bureaux en merisier style Louis XV et Louis XVI, ainsi que dans les travaux d'ébénisterie. Les débouchés concernent à 50 % le marché régional et à 50 % le marché français. La date de cessation d'activité est inconnue. Actuellement, le site est désaffecté. En 1971, le matériel de production de l'usine de meubles comprend trois scies à ruban, deux scies circulaires, une raboteuse, une scie verticale à panneaux, une dégauchisseuse, deux toupies, deux mortaiseuses, une ponceuse à bandes, une tenonneuse double, une tenonneuse simple, un appareil à faire les queues d'aronde, un équipement d'aspiration de copeaux, une presse à plaquer à chaud, un massicot, une jointeuse, du matériel d'affûtage, deux compresseurs, un pistolet, de petites perceuses défonceuses, et du matériel portatif. En 1971, l'usine emploie cinquante-quatre personnes.

  • Période(s)
    • Principale : 2e quart 20e siècle

Site désaffecté dont subsistent l'atelier de fabrication et un bâtiment annexe construit en bois et couvert d'un toit à longs pans en tuiles mécaniques. L'atelier de fabrication, de plan rectangulaire, à un étage carré, est construit en parpaings de béton et en briques creuses partiellement enduits. Il est couvert d'un toit à longs pans en matériau synthétique.

  • Murs
    • brique creuse
    • béton
    • enduit partiel
    • parpaing de béton
  • Toits
    tuile mécanique, matériau synthétique en couverture
  • Plans
    plan rectangulaire régulier
  • Étages
    1 étage carré
  • Couvertures
    • toit à longs pans
  • Énergies
    • énergie électrique
    • achetée
  • État de conservation
    établissement industriel désaffecté
  • Statut de la propriété
    propriété privée

Documents d'archives

  • AD Ille-et-Vilaine 3per 2740. Annuaire technique régional. Bretagne : Ille-et-Vilaine, p. B252 (1971).

Date(s) d'enquête : 1998; Date(s) de rédaction : 1998
Articulation des dossiers