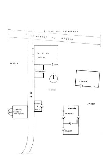
Ancien moulin, propriété des Jésuites, au 17e siècle, mentionné par Marteville dans l'édition de 1843, transformé en minoterie. Il était équipé d'une roue à aube, moteur électrique installé en 1938. Ancien logement du 18e siècle, dénaturé.
Dossier d’œuvre architecture IA35010440
| Réalisé par
Barbedor Isabelle
;
Barbedor Isabelle
Cliquez pour effectuer une recherche sur cette personne.
Menant Marie-Dominique
;
Menant Marie-Dominique
Cliquez pour effectuer une recherche sur cette personne.
Quillivic Claude
;
Quillivic Claude
Cliquez pour effectuer une recherche sur cette personne.
- inventaire préliminaire
Moulin, le Moulin de Changeon (Livré-sur-Changeon)
Œuvre recensée
Auteur
-
Menant Marie-DominiqueMenant Marie-DominiqueCliquez pour effectuer une recherche sur cette personne.
Dossier non géolocalisé
Localisation
-
Aire d'étude et canton
Ille-et-Vilaine - Liffré
-
Commune
Livré-sur-Changeon
-
Lieu-dit
le Moulin de Changeon
-
Cadastre
1995
YD 10, 9
-
Dénominationsmoulin
-
Parties constituantes non étudiéeslogement, maison, remise
-
Période(s)
- Principale : 18e siècle
- Principale : 19e siècle
Remise agricole en pan de bois.
-
Murs
- grès
- moellon
- pan de bois
-
Toitsardoise
Données complémentaires architecture IP35
- DENO
- HYPOI sans objet
- HYPOE sans objet
- PHYPO
- STYL
- NOTA
- MURS1 grès ; moellon ; pan de bois
- MURS2
- SCLE1 18e siècle ; 19e siècle
- IMPA
- CBATI
- IMBATI
- PERP
- ESPAL
- PASSAGE
- ESPAP
- DISTRIB
- ORDO
- ELEV
- ETAG
- COMBLE
- MOUV
- RDC
- ACCESA
- ACCESP
- NATUA
- FACCES
- FAXE
- FETAG
- FOUV
- IAUT sans objet
- ICHR typicum
- IESP typicum
- ICONTX intégré
- PINTE
- SEL sélection possible
- TYPVIL
- TYPECA
- POSECA
-
Statut de la propriétépropriété privée
- (c) Inventaire général, ADAGP
- (c) Inventaire général, ADAGP
- (c) Conseil général d'Ille-et-Vilaine
- (c) Inventaire général, ADAGP
Documents d'archives
-
A.D. Ille-et-Vilaine. Série Q : 1 Q 374. Procès verbaux d'expertises et des ventes, Livré-sur-Changeon. 6 Floréal an VII (25 avril 1799).
Documents figurés
-
Feuille cadastrale de la section B5 dite du Houssais. Levée par Leprovost, géomètre, [1827], échelle 1/2500e. (A.D. d'Ille-et-Vilaine : 3 P 5383).
Date(s) d'enquête :
1997;
Date(s) de rédaction :
2000
Barbedor Isabelle
Barbedor Isabelle
Cliquez pour effectuer une recherche sur cette personne.
Menant Marie-Dominique
Menant Marie-Dominique
Cliquez pour effectuer une recherche sur cette personne.
Quillivic Claude
Quillivic Claude
Cliquez pour effectuer une recherche sur cette personne.
dessinateur