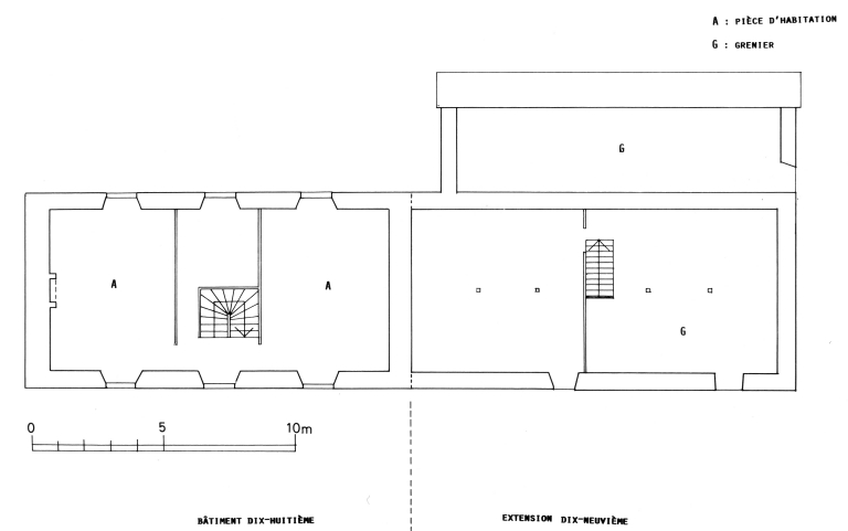
Ce bâtiment est construit en moellon de schiste et de poudingue. Les baies, en arcs segmentaires, possèdent des encadrements de poudingue. Le toit à croupes est recouvert d'ardoise. La façade est divisée en trois travées. D'autre part, au nord-ouest de la maison, se trouve un fournil adossé au mur de clôture du jardin. Le jardin est donc situé à l'ouest du logis, il est clos de murs. Un bâtiment est accolé à l'est du logis. Il est construit en moellon de schiste et de poudingue également. Ce bâtiment possède un usage de dépendance, en effet, la partie est abrite une grange et la partie ouest une écurie. Il est accolé d'un appentis postérieur servant de cellier et de porcherie. Enfin, au sud-est de la maison, s'élève un autre logis, celui-ci a été remanié.
Dossier d’œuvre architecture IA35029957
| Réalisé par
Dalibard Sabrina
;
Dalibard Sabrina
Cliquez pour effectuer une recherche sur cette personne.
- inventaire préliminaire, Montfort-sur-Meu
Maison, la Croix Huchard (Montfort-sur-Meu)
Œuvre recensée
Auteur
-
Dalibard SabrinaDalibard SabrinaCliquez pour effectuer une recherche sur cette personne.
Dossier non géolocalisé
Localisation
-
Aire d'étude et canton
Ille-et-Vilaine - Montfort-sur-Meu
-
Commune
Montfort-sur-Meu
-
Lieu-dit
la Croix Huchard
-
Cadastre
2000
AN
-
Dénominationsmaison
-
Période(s)
- Principale : 2e moitié 18e siècle
-
Murs
- schiste
- poudingue
- moellon
-
Toitsardoise
-
Statut de la propriétépropriété privée
- (c) Conseil général d'Ille-et-Vilaine
- (c) Inventaire général, ADAGP
- (c) Inventaire général, ADAGP
- (c) Inventaire général, ADAGP
- (c) Inventaire général, ADAGP
- (c) Inventaire général, ADAGP
- (c) Inventaire général, ADAGP
- (c) Inventaire général, ADAGP
- (c) Inventaire général, ADAGP
- (c) Inventaire général, ADAGP
- (c) Inventaire général, ADAGP
- (c) Inventaire général, ADAGP
- (c) Inventaire général, ADAGP
- (c) Inventaire général, ADAGP
- (c) Inventaire général, ADAGP
- (c) Inventaire général, ADAGP
- (c) Inventaire général, ADAGP
- (c) Inventaire général, ADAGP
- (c) Inventaire général, ADAGP
- (c) Inventaire général, ADAGP
- (c) Inventaire général, ADAGP
- (c) Inventaire général, ADAGP
- (c) Inventaire général, ADAGP
Documents figurés
-
Montfort. Section C1, de Coulon, en cinq feuilles, 1ère feuille. Levée par Mr Leblanc, géomètre de 2ème classe, [1846], échelle 1/2000 e. (A.D. Ille-et-Vilaine).
Date(s) d'enquête :
2003;
Date(s) de rédaction :
2003
Dalibard Sabrina
Dalibard Sabrina
Cliquez pour effectuer une recherche sur cette personne.
Dossiers de synthèse
Articulation des dossiers