L'origine du château de la Chapelle-aux-Filtzméens est encore mal connu. Une motte serait à l'origine de l'établissement du château actuel, comme le rappelle encore la toponymie puisque deux parcelles situées à l'Ouest de l'entrée s'intitulent toujours « le pré des mottes ». Le château : Le château tel que nous le voyons aujourd'hui est une construction des 16e et 17e siècles. Les vestiges les plus anciens se situent dans la partie Est du logis principal, notamment une cheminée monumentale située dans la partie basse du château. Les différences de mise en oeuvre et les reprises d'appareillage semblent indiquer une reconstruction de la partie Ouest. Les encadrements des baies et le décor Renaissance de l'ancien logis semble avoir été réutilisé en façade principale. Ces travées dont les ordres sont clairement affirmés et disposés constituent de beaux témoins de l'introduction de l'art de la Renaissance en Bretagne. On sait par ailleurs que la seigneurie de la Chapelle-aux-Filtzméens appartenait en 1513 au sieur de Saint Amadour. Il s'agit sans doute de François de Saint Amadour, chambellan du duc François II, capitaine de Saint-Aubin-du-Cormier et seigneur de Tizé. La qualité des vestiges en place pourraient être attribué à cette puissante et riche famille. Les dates de la reconstruction du logis ne sont pas plus définies que celles de la construction du premier logis. L'étude stylistique permet toutefois de dater cette campagne du début du 17e siècle. Le grand escalier rampe sur rampe date de cette période ainsi que la façade Nord plus austère. Parmi les éléments remarquables, il convient également de signaler un ensemble homogène de boiseries du 18e siècle, pièces d'apparat, chambres avec leurs alcôves. Le colombier : Le colombier du 17e siècle est en très bon état de conservation. Outre ses nombreux trous de boulins, il conserve son échelle à échalier. Sa tour lanterne à dôme a fait l'objet d'une restauration de qualité. La Chapelle (détruite) : Le chanoine Guillotin de Corson, dans le pouillé historique de Rennes, fait mention d'une chapelle dédiée à Notre Dame. Construite par les seigneurs de la Chapelle-aux-Filtzméens dans les jardins de leur manoir du dit lieu. En 1702, Louis-Hercule de Francheville, seigneur de Québriac, fonde par testament une chapellenie de sept messes par semaines, qu'un chapelain devait dire soit à l'église paroissiale, soit à la chapelle du château. Le puits : Le puits situé dans la cour antérieure proviendrait du château du Gage sur la commune de Pleugueneuc. Il porte gravé sur la pierre les armes de la famille de Saint-Gilles et la date de 1625. Le jardin : Le tracé du jardin actuel n'est qu'une pâle évocation du jardin du 18e siècle qui avait été dessiné à cette période. Le relevé des matrices cadastrales indique une organisation bien définie des parcelles, le parc, le jardin botanique, le labyrinthe, le jardin de la Basse-cour. L'orangerie date de l'aménagement du jardin. La métairie : L'ensemble de la métairie visible sur le cadastre de 1834 est encore en place aujourd'hui. Les bâtiments qui s'organisent autour d'une cour rectangulaire semblent remonter au 18e et 19e siècles. L'intérieur n'a pas été visité. Cette partie a été transformé lors de l'aménagement du camping du château. Intérêt départemental.
- inventaire préliminaire, La Chapelle-aux-Filtzméens
Dossier non géolocalisé
-
Aire d'étude et canton
Ille-et-Vilaine - Tinténiac
-
Commune
La Chapelle-aux-Filtzméens
-
Lieu-dit
le Logis
-
Cadastre
1982
-
Dénominationschâteau
-
Parties constituantes non étudiéespuits, parc, jardin, colombier, ferme, fossé, enclos
-
Période(s)
- Principale : 16e siècle
- Principale : 1ère moitié 17e siècle
- Principale : 18e siècle
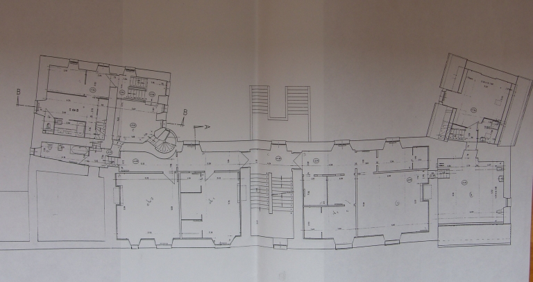
Logis. Plan en U. Corps central rectangulaire asymétrique encadré de deux ailes de volumes différents. Sur l'aile droite, avec tourelle en encorbellement, est accolé à l'est un bâtiment rectangulaire avec une ancienne tour d'escalier dans oeuvre qui a été tronquée. Le décor de la façade Sud est significatif de la première renaissance, dorique en rez-de-chaussée, ionique à l'étage et corinthien aux lucarnes. Façade nord symétrique à 5 travées, sans décor hormis les frontons des lucarnes. Le gros oeuvre présente un appareillage différent en moellons de granite et en pierre de taille. De la pierre calcaire a été utilisée notamment aux lucarnes. A noter également des armoiries apposées aux lucarnes (non lues) et un cadran solaire dans l'angle de l'aile Est.
-
Murs
- granite
- moellon
- pierre de taille
- appareil mixte
-
Toitsardoise
Données complémentaires architecture IP35
- DENO
- HYPOI sans objet
- HYPOE sans objet
- PHYPO
- STYL
- NOTA
- MURS1 granite ; moellon ; pierre de taille ; appareil mixte
- MURS2
- SCLE1 16e siècle ; 1ère moitié 17e siècle ; 18e siècle
- IMPA
- CBATI
- IMBATI
- PERP
- ESPAL
- PASSAGE
- ESPAP
- DISTRIB
- ORDO
- ELEV
- ETAG
- COMBLE
- MOUV
- RDC
- ACCESA
- ACCESP
- NATUA
- FACCES
- FAXE
- FETAG
- FOUV
- IAUT typicum
- ICHR typicum
- IESP typicum
- ICONTX intégré
- PINTE
- SEL sélection requise
- TYPVIL
- TYPECA
- POSECA
-
Statut de la propriétépropriété privée
-
Protectionsinscrit MH, 1976/05/12
inscrit MH, 2013/09/19
-
Précisions sur la protection
1976/05/12 : inscrit MH. Façades, toitures et colombier.
2013/09/19 : Inscrit MH. Logis en totalité, orangerie pour ses façades et toitures, douves, avant-cour, cour, jardins, mail, avenue d'entrée et esplanades bordant les douves, deux allées de la partie boisée de l'ancien parc.
-
Référence MH
- (c) Conseil général d'Ille-et-Vilaine
- (c) Inventaire général, ADAGP
- (c) Inventaire général, ADAGP
- (c) Inventaire général, ADAGP
- (c) Inventaire général, ADAGP
- (c) Inventaire général, ADAGP
- (c) Inventaire général, ADAGP
- (c) Inventaire général, ADAGP
- (c) Inventaire général, ADAGP
- (c) Inventaire général, ADAGP
- (c) Inventaire général, ADAGP
- (c) Inventaire général, ADAGP
- (c) Inventaire général, ADAGP
- (c) Inventaire général, ADAGP
- (c) Inventaire général, ADAGP
- (c) Inventaire général, ADAGP
- (c) Inventaire général, ADAGP
- (c) Inventaire général, ADAGP
- (c) Inventaire général, ADAGP
- (c) Inventaire général, ADAGP
- (c) Inventaire général, ADAGP
- (c) Inventaire général, ADAGP
- (c) Inventaire général, ADAGP
- (c) Inventaire général, ADAGP
- (c) Inventaire général, ADAGP
- (c) Inventaire général, ADAGP
- (c) Inventaire général, ADAGP
- (c) Inventaire général, ADAGP
- (c) Inventaire général, ADAGP
- (c) Inventaire général, ADAGP
- (c) Inventaire général, ADAGP
- (c) Inventaire général, ADAGP
- (c) Inventaire général, ADAGP
- (c) Inventaire général, ADAGP
- (c) Inventaire général, ADAGP
- (c) Inventaire général, ADAGP
- (c) Inventaire général, ADAGP
- (c) Inventaire général, ADAGP
- (c) Inventaire général, ADAGP
- (c) Inventaire général, ADAGP
- (c) Inventaire général, ADAGP
- (c) Inventaire général, ADAGP
- (c) Inventaire général, ADAGP
- (c) Inventaire général, ADAGP
- (c) Inventaire général, ADAGP
- (c) Inventaire général, ADAGP
- (c) Inventaire général, ADAGP
- (c) Inventaire général, ADAGP
- (c) Inventaire général, ADAGP
- (c) Inventaire général, ADAGP
- (c) Inventaire général, ADAGP
Documents d'archives
-
A. CRMH : Rennes, hôtel de Blossac, dossier d'inscription.
Bibliographie
-
Région Bretagne (Service de l'Inventaire du patrimoine culturel)
BANEAT, Paul. Le département d'Ille-et-Vilaine, Histoire, Archéologie, Monuments. Rennes : J. Larcher, 1929.
-
FROTIER DE LA MESSELIERE, Henri. Le guide de l'Ille-et-Vilaine. Plouagat : GP Impressions-Kervaux, 1994.
Photographe à l'Inventaire