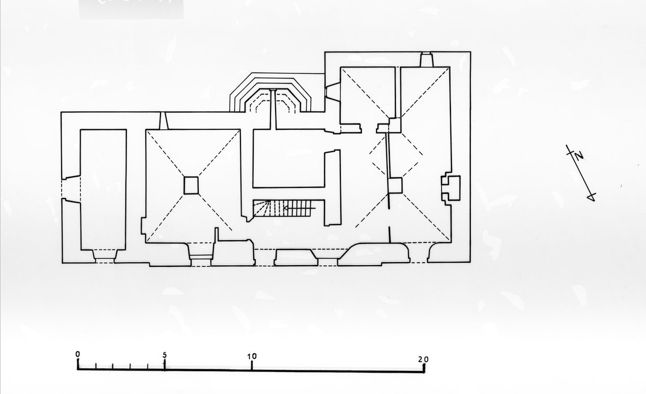
Maison, le Potager (Le Palais),
Plan au sol.Immatriculation
IVR53_19775600013P
Auteur du document reproduit
- ;
Auteur de l'illustration
Copyright
Diffusion
reproduction soumise à autorisation du titulaire des droits d'exploitation
Type
phototype argentique
Besoin d'informations sur cette illustration ?
Nous contacter