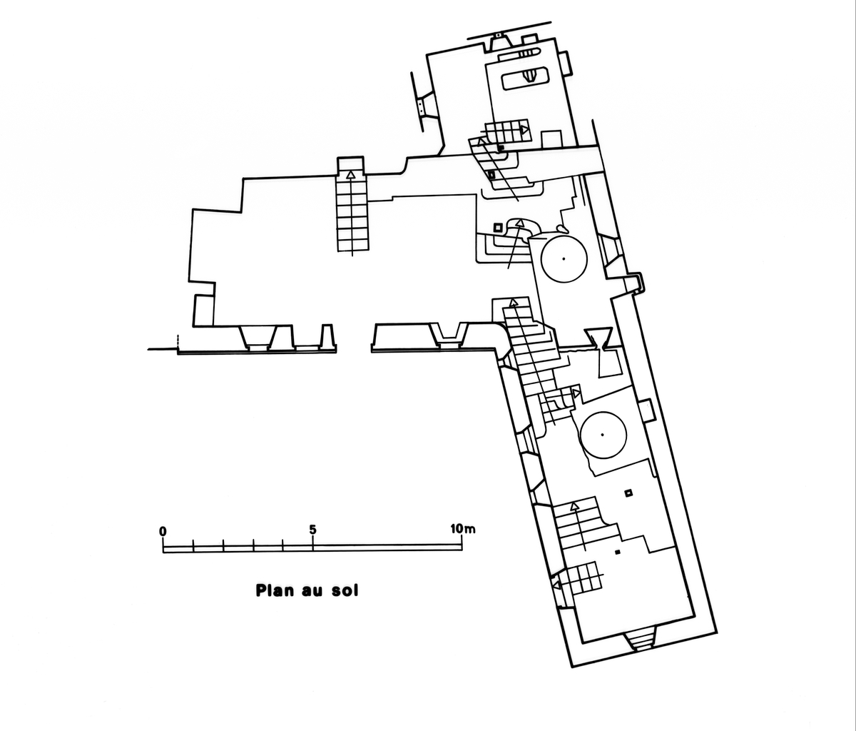
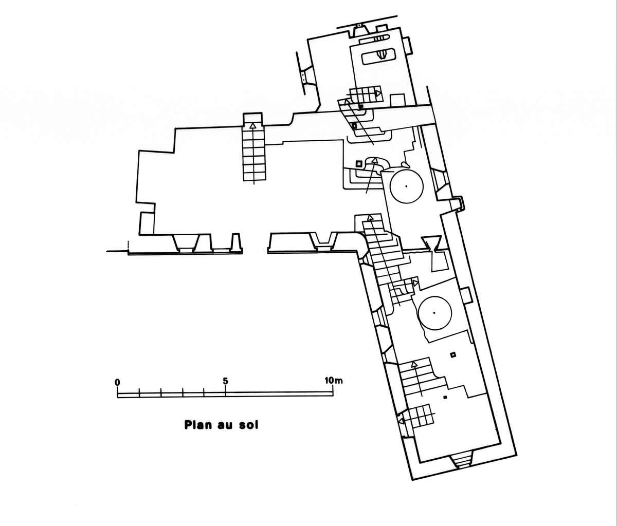
Moulin à eau, Kerzuot (Plozévet),
Plan au solImmatriculation
IVR53_19812900644P
Auteur de l'illustration
Copyright
Diffusion
reproduction soumise à autorisation du titulaire des droits d'exploitation
Type
phototype argentique
Besoin d'informations sur cette illustration ?
Nous contacter
Photographe à l'Inventaire