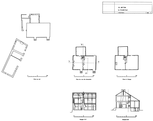
Demeure, la Grand Cour (Betton),
Plan du rez-de-chaussée et de l'étage, coupe longitudinale et transversale. Etat actuel.Immatriculation
IVR53_19833500696P
Auteur de l'illustration
Copyright
Diffusion
reproduction soumise à autorisation du titulaire des droits d'exploitation
Type
phototype argentique
Besoin d'informations sur cette illustration ?
Nous contacter
Informations techniques
-
Technique de relevé
- relevé manuel
dessinateur