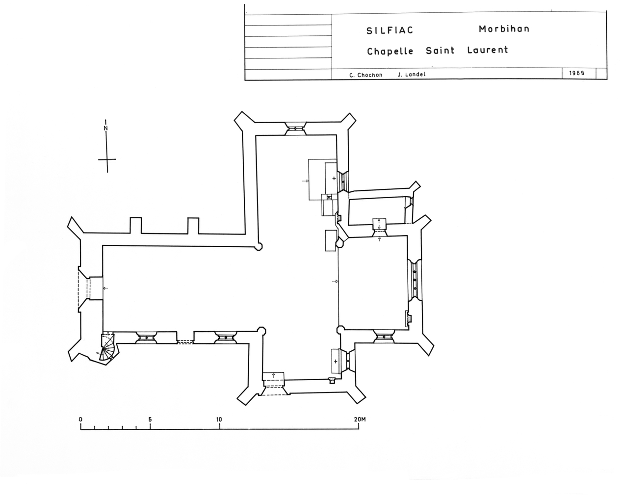
Chapelle Saint-Laurent, Saint-Laurent (Silfiac),
Plan au solImmatriculation
IVR53_19835600319P
Auteur de l'illustration
Copyright
Diffusion
reproduction soumise à autorisation du titulaire des droits d'exploitation
Type
phototype argentique
Besoin d'informations sur cette illustration ?
Nous contacter
Informations techniques
-
Technique de relevé
- relevé manuel