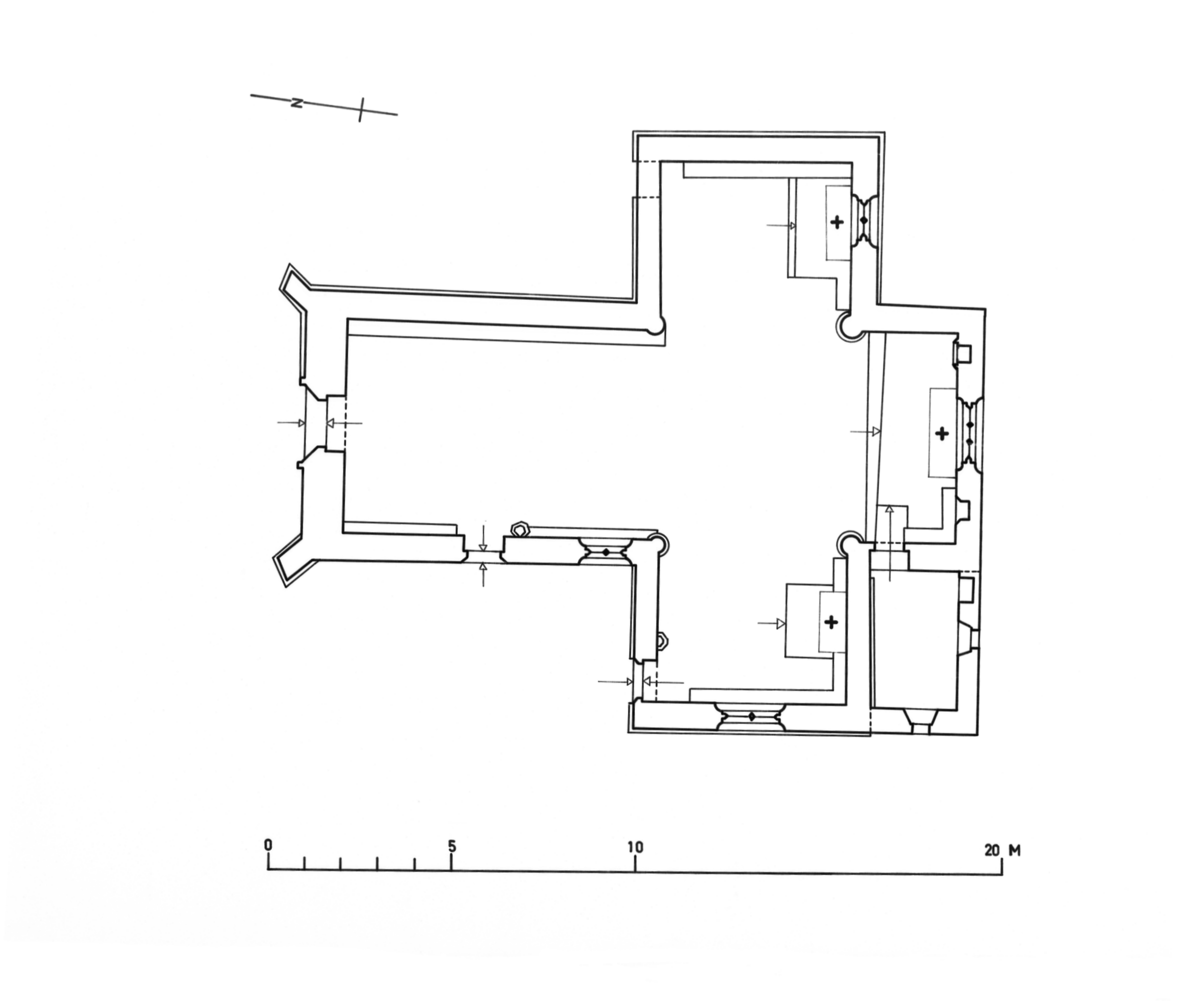
Chapelle Saint-Germain, Saint-Germain (Séglien),
PlanImmatriculation
IVR53_19835600322P
Auteur de l'illustration
Copyright
Diffusion
reproduction soumise à autorisation du titulaire des droits d'exploitation
Type
phototype argentique
Besoin d'informations sur cette illustration ?
Nous contacter
Informations techniques
-
Technique de relevé
- relevé manuel