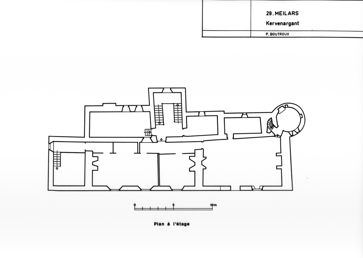
Manoir, Kervenargant (Confort-Meilars),
Plan de l'étageImmatriculation
IVR53_19852900416P
Auteur du document reproduit
Auteur de l'illustration
Copyright
Diffusion
reproduction soumise à autorisation du titulaire des droits d'exploitation
Type
phototype argentique
Besoin d'informations sur cette illustration ?
Nous contacter
dessinateur