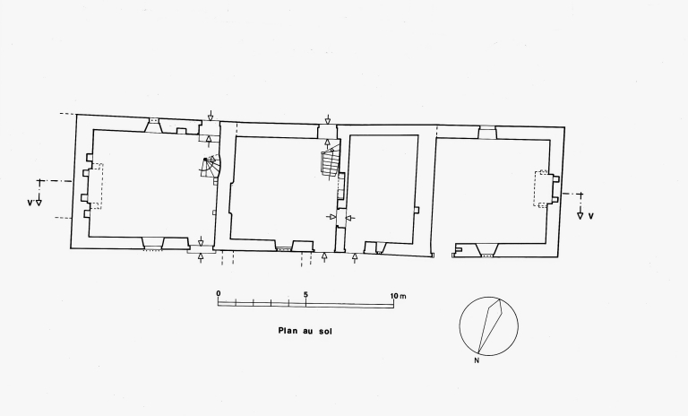
Manoir, Lessart (Miniac-sous-Bécherel),
Plan au sol.Immatriculation
IVR53_19863500054P
Auteur de l'illustration
Copyright
Diffusion
reproduction soumise à autorisation du titulaire des droits d'exploitation
Type
phototype argentique
Besoin d'informations sur cette illustration ?
Nous contacter
Photographe à l'Inventaire