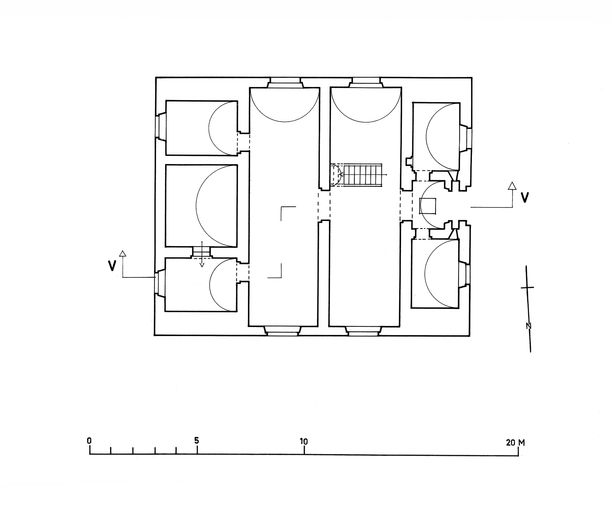
Corps de garde crénelé n° 3 et batterie (Cr 328) puis Centre de voile de Roscanvel,
Plan du corps de garde crénélé n° 3 du bourg de RoscanvelImmatriculation
IVR53_19872900024PA
Auteur du document reproduit
Auteur de l'illustration
Copyright
Diffusion
reproduction soumise à autorisation du titulaire des droits d'exploitation
Type
phototype argentique
Besoin d'informations sur cette illustration ?
Nous contacter
Informations techniques
-
Technique de relevé
- relevé manuel