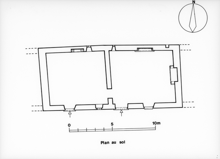
Maison de prêtre puis relais de poste, la Maladrie (Saint-Juvat),
Plan au solImmatriculation
IVR53_19892200006P
Auteur du document reproduit
Auteur de l'illustration
Copyright
Diffusion
reproduction soumise à autorisation du titulaire des droits d'exploitation
Type
phototype argentique
Besoin d'informations sur cette illustration ?
Nous contacter
Photographe à l'Inventaire