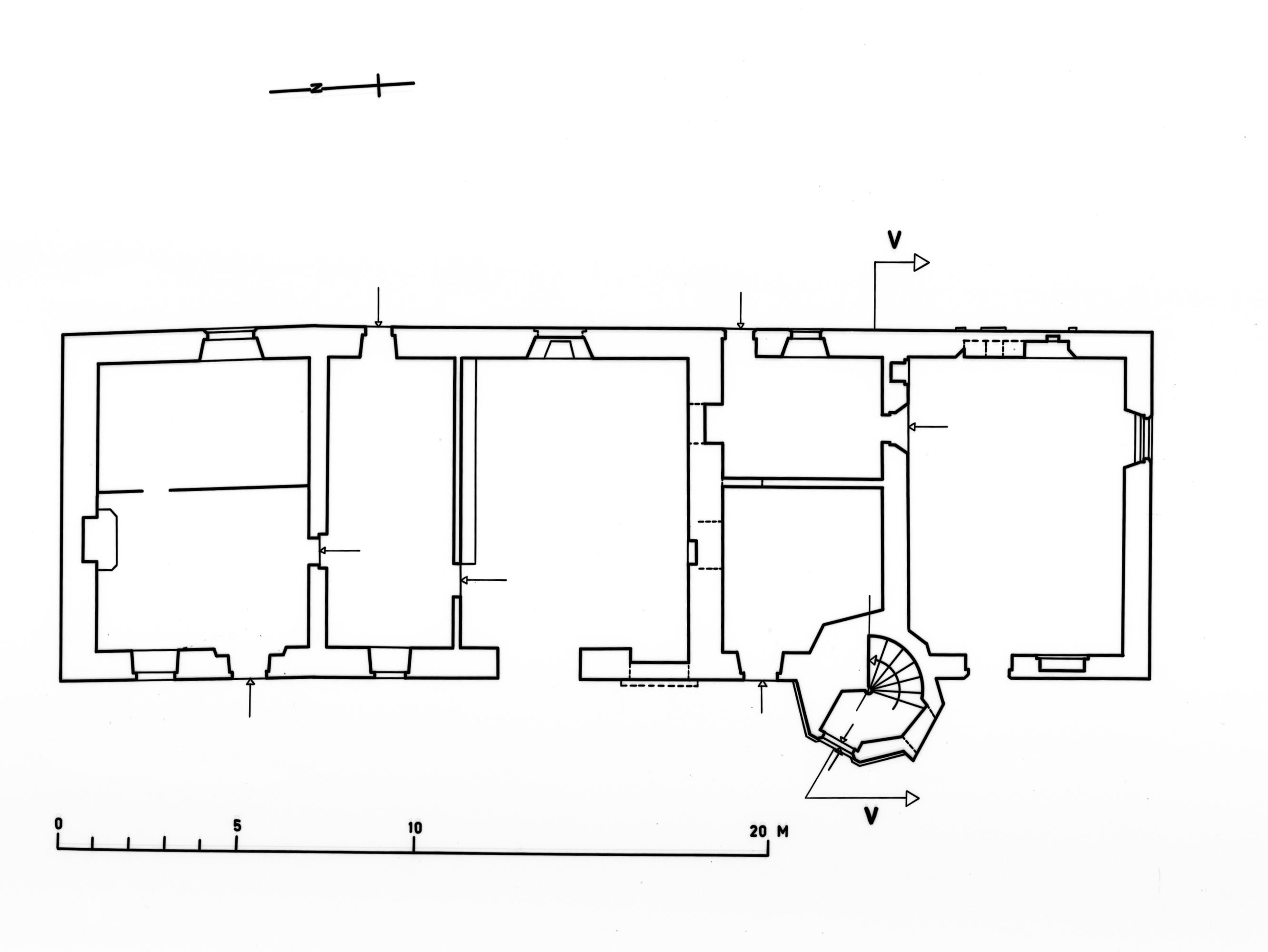
Château, Les Acres (Parigné),
Plan du rez-de-chausséeImmatriculation
IVR53_19893500085P
Auteur de l'illustration
Copyright
Diffusion
reproduction soumise à autorisation du titulaire des droits d'exploitation
Type
phototype argentique
Besoin d'informations sur cette illustration ?
Nous contacter
-
Région Bretagne (Service de l'Inventaire du patrimoine culturel)
Parigné - Les Acres - Plan au sol. Dessin
Photographe à l'Inventaire