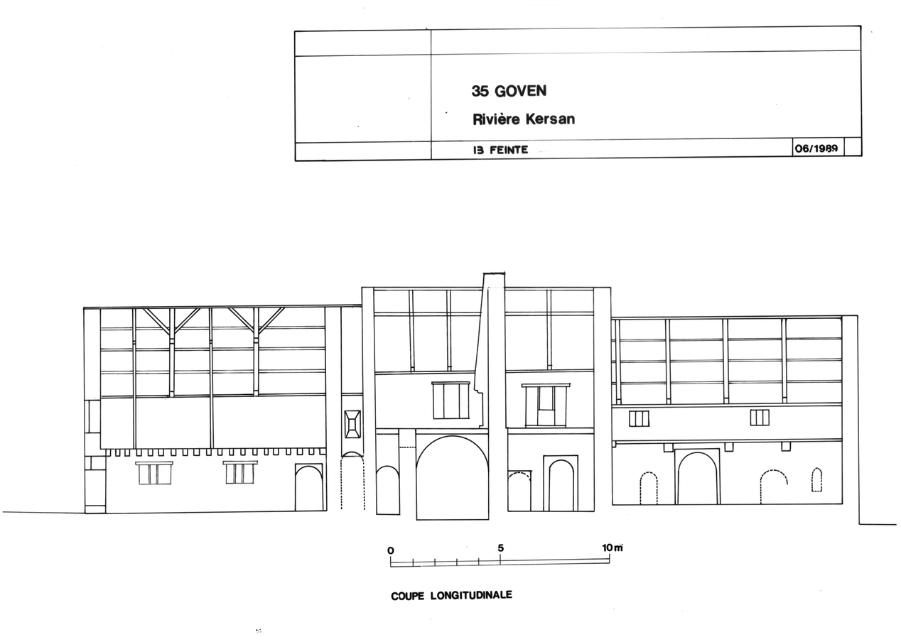
Manoir, la Rivière Kersan (Goven),
Coupe longitudinale.Immatriculation
IVR53_19893500406P
Auteur de l'illustration
(reproduction)
Copyright
Diffusion
reproduction soumise à autorisation du titulaire des droits d'exploitation
Type
phototype argentique
Besoin d'informations sur cette illustration ?
Nous contacter
Photographe à l'Inventaire