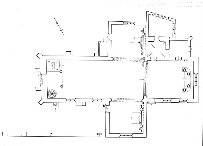
Prieuré de bénédictins, église paroissiale Saint-Lézin (La Chapelle-Janson),
Plan masse.Immatriculation
IVR53_19903500046P
Auteur de l'illustration
Copyright
Diffusion
reproduction soumise à autorisation du titulaire des droits d'exploitation
Type
phototype argentique
Besoin d'informations sur cette illustration ?
Nous contacter
Photographe à l'Inventaire