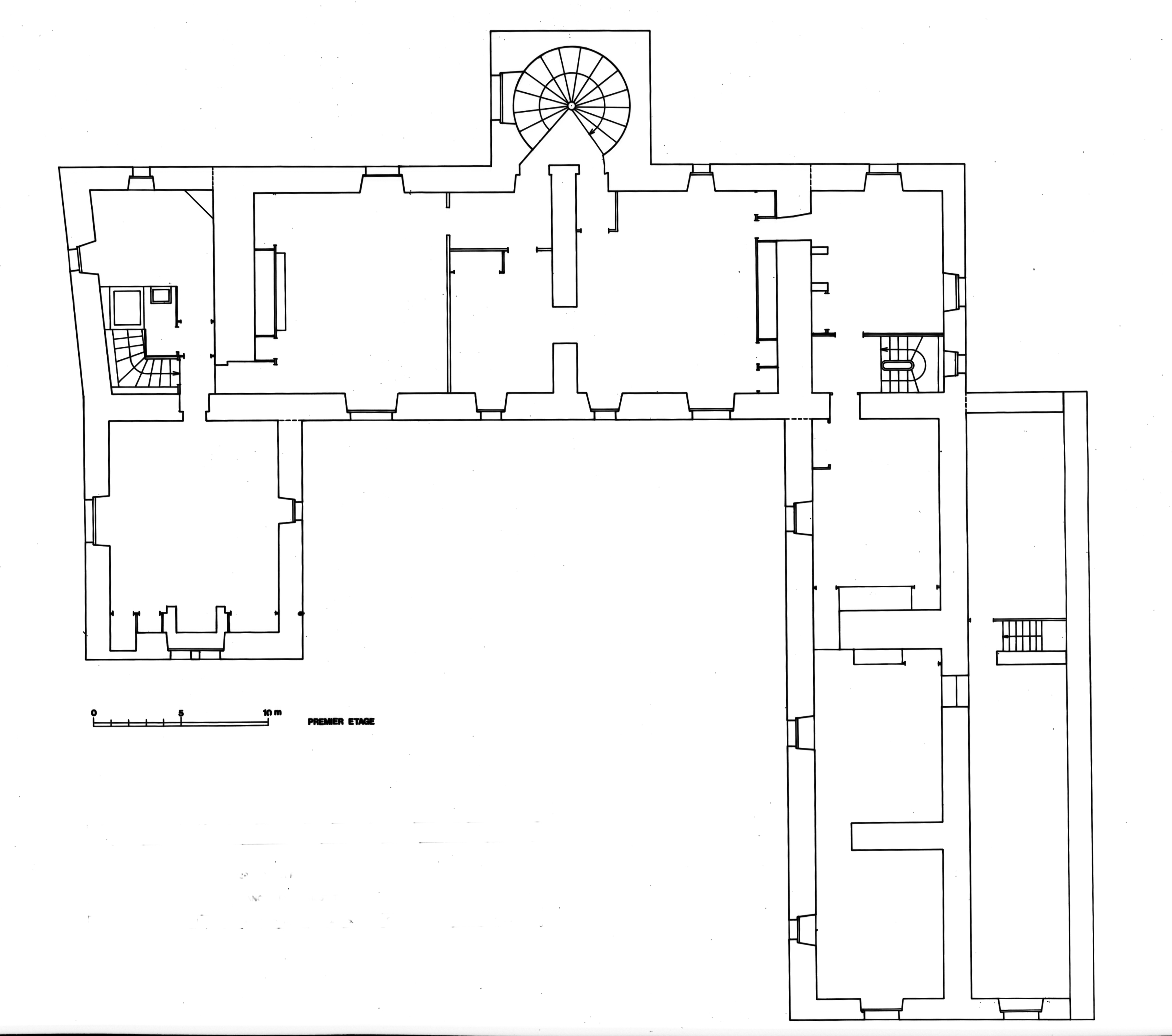
Manoir, Kerestat (Roscoff),
Plan du premier étageImmatriculation
IVR53_19912900154P
Auteur de l'illustration
Copyright
Diffusion
reproduction soumise à autorisation du titulaire des droits d'exploitation
Type
phototype argentique
Besoin d'informations sur cette illustration ?
Nous contacter