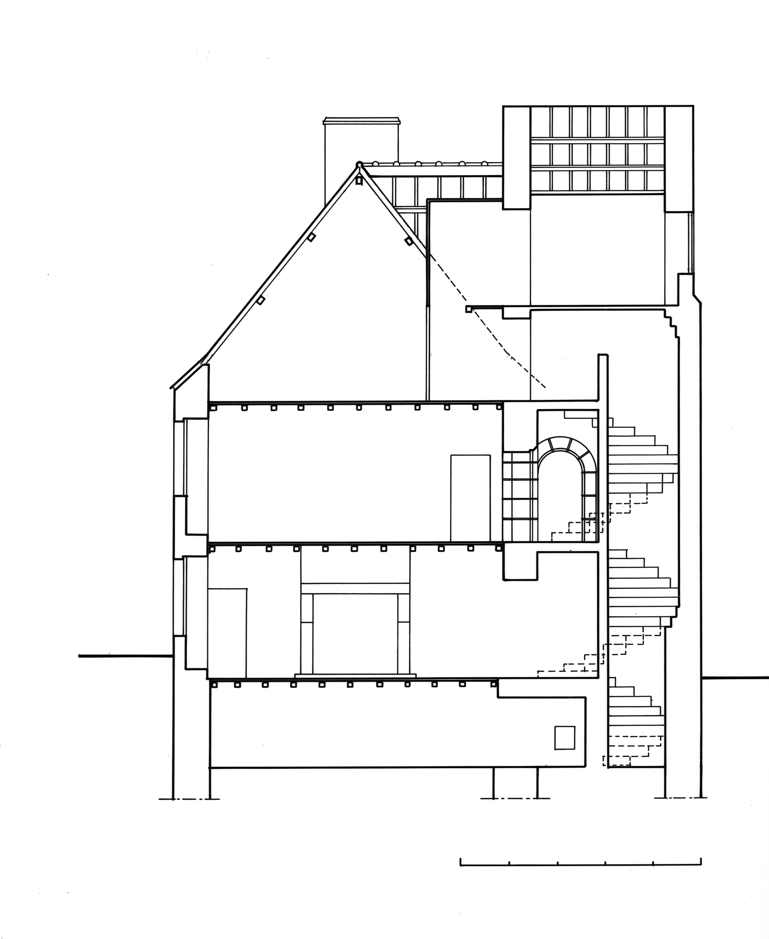
Maison de Négociant, 18 rue Albert de Mun (Roscoff),
Coupe transversaleImmatriculation
IVR53_19922900429P
Auteur de l'illustration
Copyright
Diffusion
reproduction soumise à autorisation du titulaire des droits d'exploitation
Type
phototype argentique
Besoin d'informations sur cette illustration ?
Nous contacter