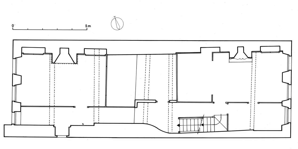
Maison, 23 rue Olivier de Clisson (Josselin),
Maison : relevé du premier étage (état en 1994)Immatriculation
IVR53_19945600125P
Auteur du document reproduit
Auteur de l'illustration
Diffusion
reproduction soumise à autorisation du titulaire des droits d'exploitation
Type
phototype argentique
Besoin d'informations sur cette illustration ?
Nous contacter
Informations techniques
-
Technique de relevé
- relevé manuel
Dessinatrice à l'Inventaire