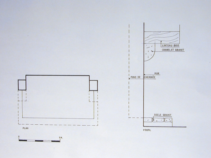
Ferme, 22 rue des Français Libres, Terrelabouët (Cancale),
Plan et coupe de la cheminée (état 1973)Immatriculation
IVR53_20003500004A4
Auteur de l'illustration
Copyright
Diffusion
reproduction soumise à autorisation du titulaire des droits d'exploitation
Type
dessin non numérique
Besoin d'informations sur cette illustration ?
Nous contacter
Informations techniques
-
Technique de relevé
- relevé manuel
dessinateur