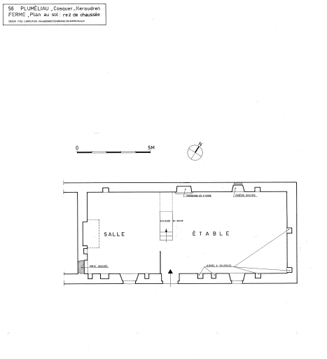
Ferme, Cosquer Keraudren (Pluméliau fusionnée en Pluméliau-Bieuzy en 2019),
Plan au solImmatriculation
IVR53_20025604509P
Auteur de l'illustration
Copyright
Diffusion
reproduction soumise à autorisation du titulaire des droits d'exploitation
Type
phototype argentique
Besoin d'informations sur cette illustration ?
Nous contacter
Informations techniques
-
Technique de relevé
- relevé manuel
dessinateur