Manoir, Villeneuve (La Chapelle-Caro fusionnée en Val d'Oust en 2016),
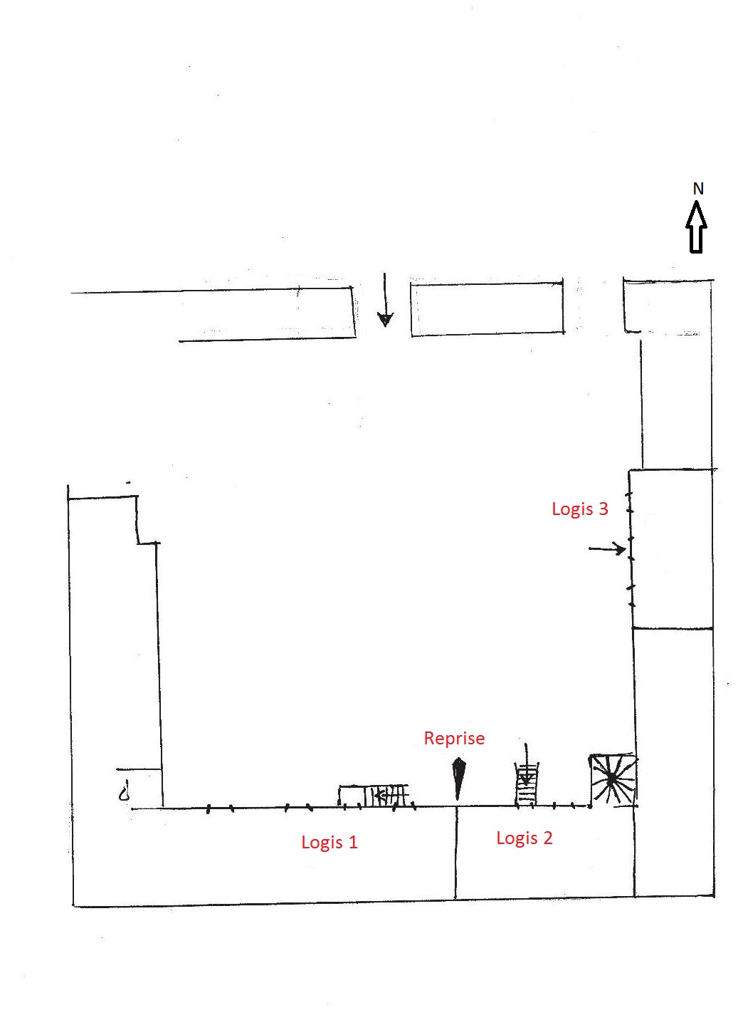
Manoir : plan de masse (schéma par J. J. Rioult, 1985)Immatriculation
IVR53_20125608041NUCB
Auteur du document reproduit
-
Rioult Jean-JacquesRioult Jean-JacquesCliquez pour effectuer une recherche sur cette personne.
Diffusion
reproduction soumise à autorisation du titulaire des droits d'exploitation
Type
phototype numérique
Besoin d'informations sur cette illustration ?
Nous contacter