Le patrimoine mobilier de l'église paroissiale Saint-Pierre (Plounévez-Lochrist),
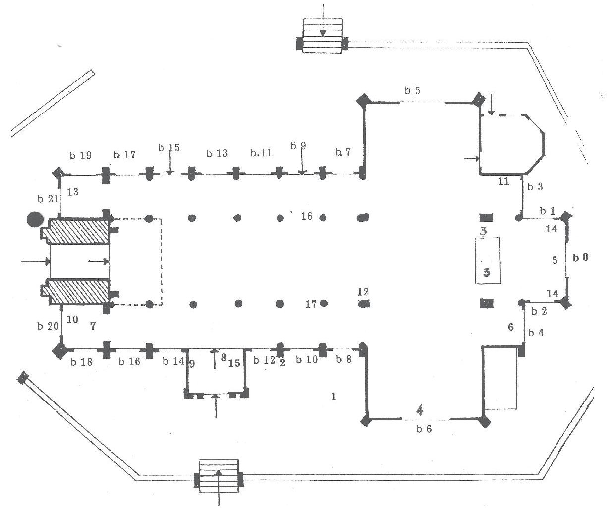
Plan de situation des objets mobiliers repérés ou étudiés (état en 1987)Immatriculation
IVR53_20152911994NUCB
Auteur du document reproduit
-
Menant Marie-DominiqueMenant Marie-DominiqueCliquez pour effectuer une recherche sur cette personne.
Copyright
Diffusion
reproduction soumise à autorisation du titulaire des droits d'exploitation
Type
phototype numérique
Besoin d'informations sur cette illustration ?
Nous contacter
Informations techniques
-
Échelle
- 1 : 2000.
-
Technique de relevé
- relevé manuel