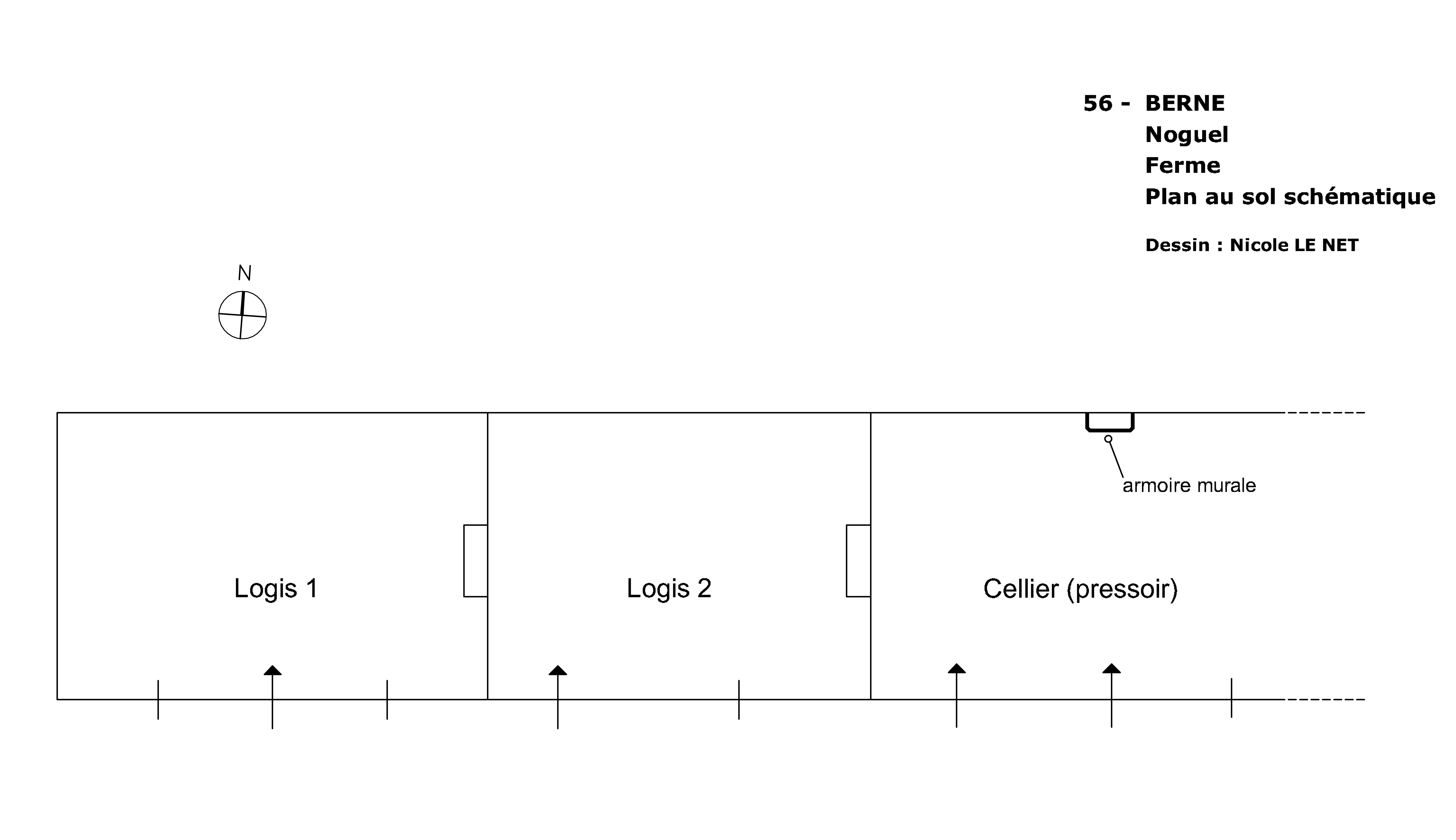
Ensemble de deux fermes, Noguel (Berné),
Plan au sol, croquis, par N. Le NetImmatriculation
IVR53_20155605172NUD
Auteur de l'illustration
Copyright
Diffusion
reproduction soumise à autorisation du titulaire des droits d'exploitation
Type
dessin numérique
Besoin d'informations sur cette illustration ?
Nous contacter
Informations techniques
-
Technique de relevé
- relevé manuel
Dessinatrice à l'Inventaire