Lycée Ernest Renan, 2-4 boulevard Hérault (Saint-Brieuc),
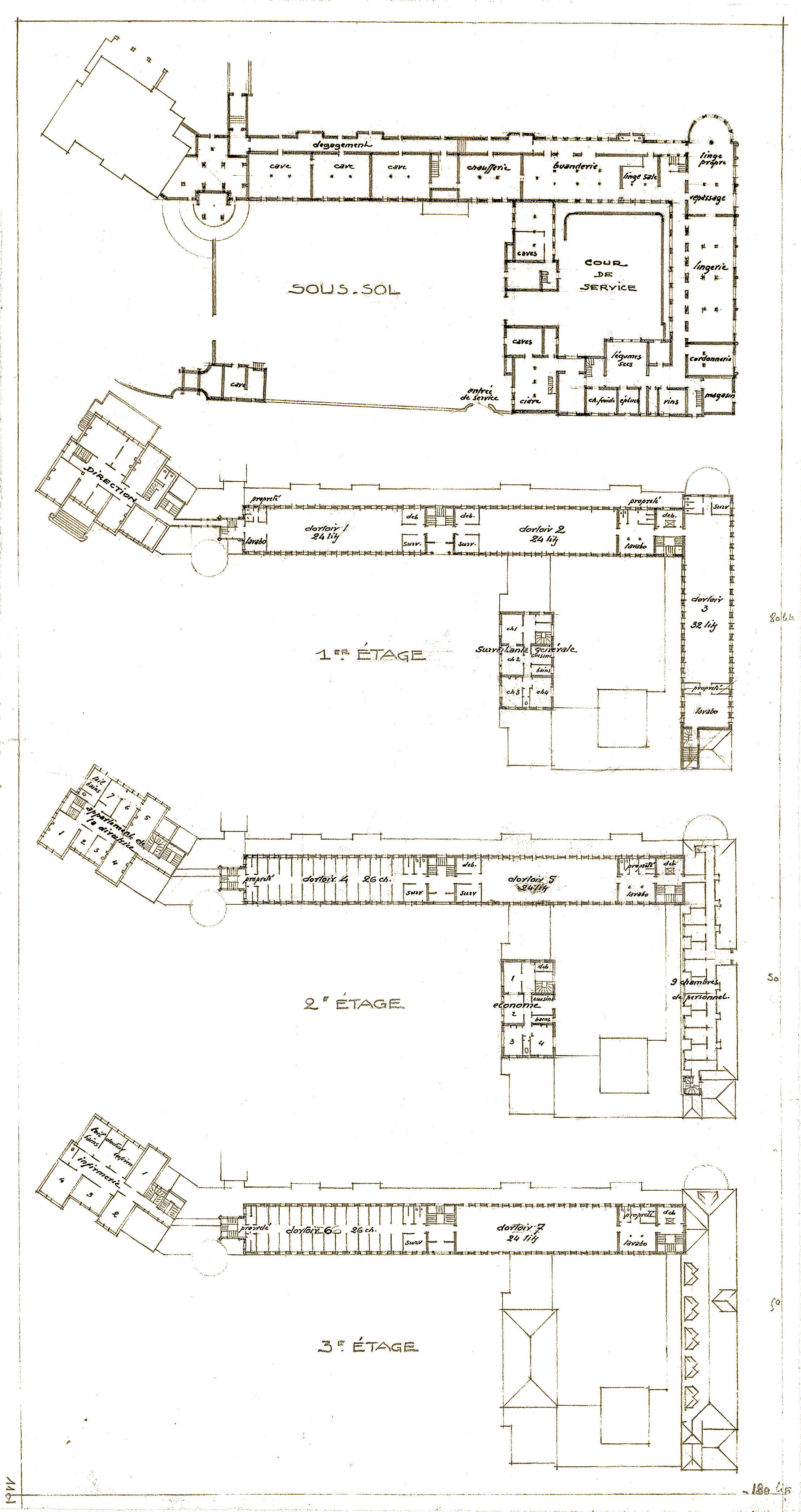
Plan des différents niveaux de la villa Baratoux, de l'internat, de l'économat, du réfectoire, des cuisines et de la loge. G-R. Lefort, architecte (sd. ca 1936)Immatriculation
IVR53_20182206113A0
Auteur de l'illustration
-
Lefort Georges-RobertLefort Georges-RobertCliquez pour effectuer une recherche sur cette personne.
Copyright
- (c) Conseil départemental des Côtes-d'Armor
Diffusion
reproduction soumise à autorisation du titulaire des droits d'exploitation
Type
dessin non numérique
Sujets
lycée
Besoin d'informations sur cette illustration ?
Nous contacter