Ensemble fortifié codé "Po46" de l'Ile à Bois (Lézardrieux),
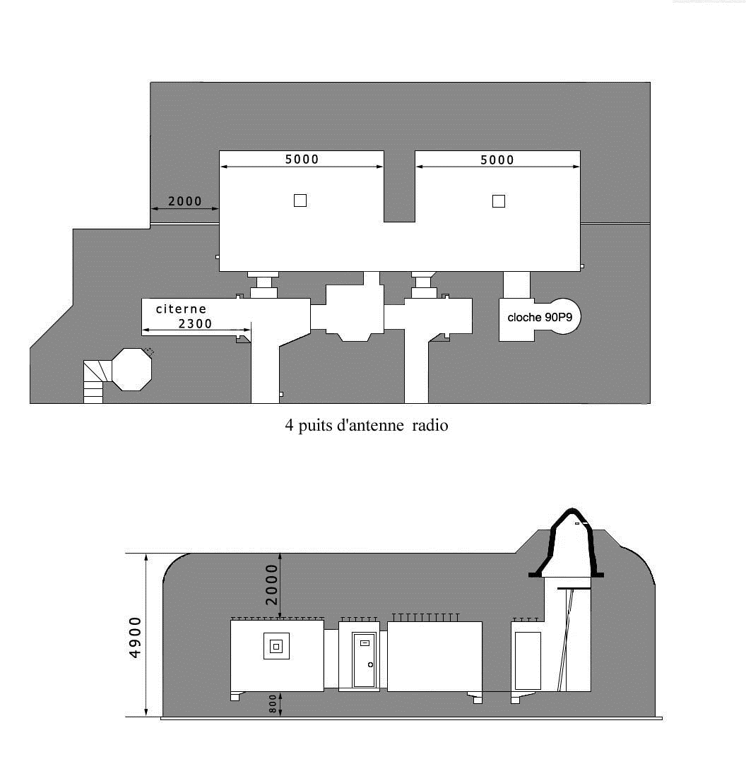
Abri type 502, pour deux groupes de combat. Il était utilisé comme poste de commandement de compagnie (dessin : Alain Bohée)Immatriculation
IVR53_20182207574NUCA
Auteur de l'illustration
Copyright
- (c) Association Océanide
Diffusion
reproduction soumise à autorisation du titulaire des droits d'exploitation
Type
phototype numérique
Besoin d'informations sur cette illustration ?
Nous contacter
Historien, membre de l'association Océanide.