Lycée Paul Sérusier, avenue Waldkappel (Carhaix-Plouguer),
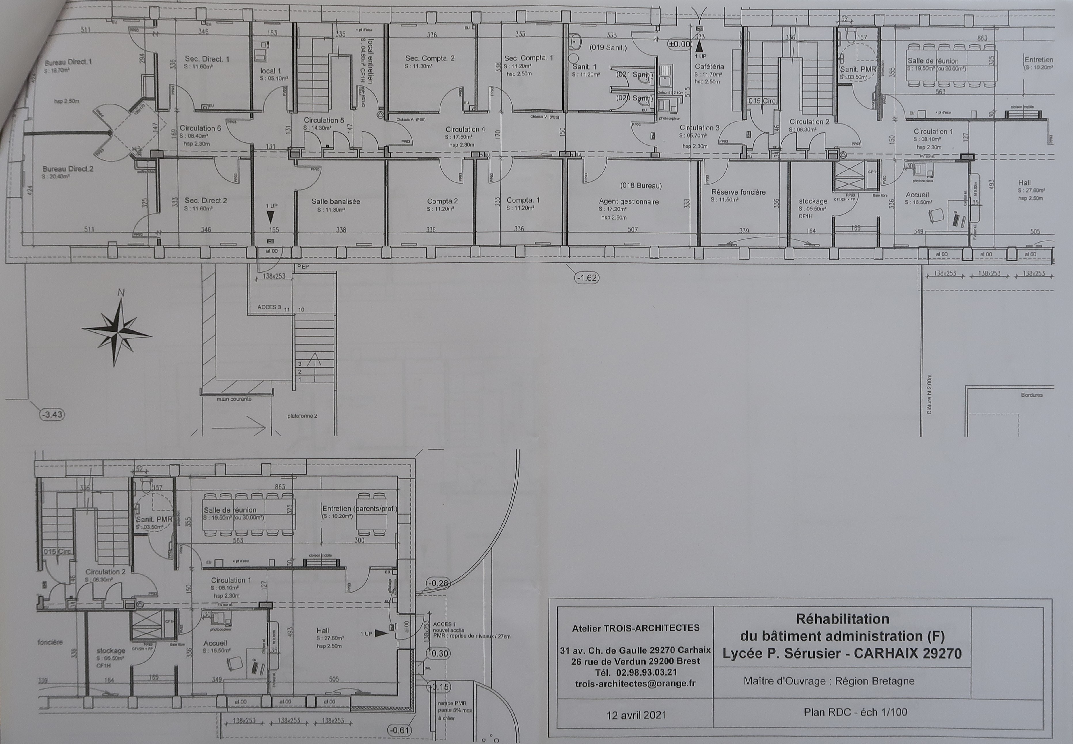
Plan du rez-de-chaussée du bâtiment d'accueil, administration et logements lors de sa restructuration. A3A architectes, 2021. La création d'un hall d'accueil est à relier au changement d'emplacement de l'entrée.Immatriculation
IVR53_20222905145A3
Auteur du document reproduit
-
A3A - Atelier trois-architectesA3A - Atelier trois-architectesCliquez pour effectuer une recherche sur cette personne.
Copyright
- (c) Ville de Carhaix-Plouguer
Diffusion
reproduction soumise à autorisation du titulaire des droits d'exploitation
Type
dessin non numérique
Besoin d'informations sur cette illustration ?
Nous contacter
-
Archives municipales de Carhaix-Plouguer : sans cote
Archives municipales de Carhaix-Plouguer : Archives municipales de Carhaix-Plouguer. Coignat [J.], Plans issus des dossiers de permis de construire, 1989-2021
Agence d'architecture créée en 2006 sous forme de SARL, composée en 2022 des architectes Boris Carlach, Richard Guillemot et Céline Beaucourt, implantée à Carhaix-Plouguer (29), 31 avenue Général de Gaulle.