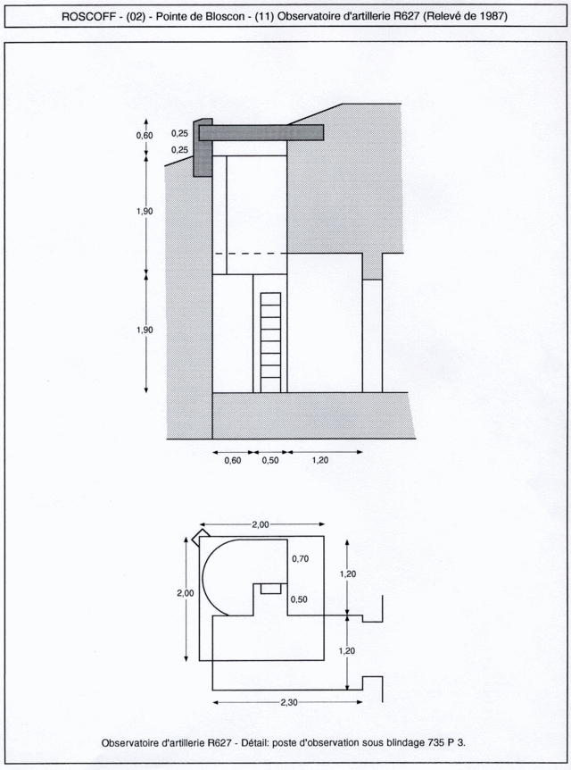
Bunker - abri pour observatoire d'artillerie de type 627, en contrebas de la chapelle Sainte-Barbe, Pointe de Bloscon (Roscoff),

Relevé de l'observatoire sous plaque de blindage (dessin : Olivier Doher, 1987)
Immatriculation
IVR53_20232905359NUCA
Copyright
  • (c) Collection particulière
Année de prise de vue
1987
Diffusion
reproduction soumise à autorisation du titulaire des droits d'exploitation
Type
phototype numérique
Besoin d'informations sur cette illustration ?
Nous contacter
Références des documents reproduits
  • Atlantikwall Superforum. Le Mur de l'Atlantique en France. Bunkerarchéologie.

    Message du 15 Juin 2007.

    https://atlantikwall.superforum.fr/t211p280-quiz-bretagne?highlight=Roscoff#6317