Chargée d'études d'Inventaire au Conseil Régional de Bretagne, Inventaire du patrimoine.
- enquête thématique régionale, Les ports de Bretagne
Dossier non géolocalisé
-
Aire d'étude et canton
Bretagne - Brest Centre
-
Commune
Brest
-
Adresse
8 quai Malbert
-
Dénominationsétablissement administratif
Le Parc à balisage de Brest est implanté sur le quai Malbert, anciennement quai de la Santé, depuis 1879.
Le site actuel a été construit entre 1949 et 1954 à l'emplacement du site précédent détruit durant la Seconde Guerre mondiale.
Dès la construction de la jetée Ouest du nouveau port de commerce de Brest y est prévue l'installation du parc central du balisage. Les photographies de Jules Cros, pour le compte du service des Ponts et Chaussées, montrent, en 1873, les bouées et balises à proximité des premiers bassins, des rampes d'accès faisant la liaison ville-port et de la voie ferrée maritime (à l'angle actuel des rues Jean-Marie Le Bris et Blaveau).
Les 23 mars 1874 et 25 juillet 1876 paraissent les décrets affectant aux travaux publics, sur la jetée de l'Ouest, un terrain de 1 750 m² destiné au nouveau parc du balisage (décision ministérielle le 4 mai 1876). L'installation du Parc à balises est effective dès 1879, à l'extrémité de la jetée, au quai de la Santé, nommé ainsi en raison de la présence des locaux dédiés à la santé des gens de mer.
En 1938, la construction d'un bâtiment de style néo-régionaliste permet de réunir sous un même toit les services des Ponts et Chaussées (bureaux au centre), de la santé (partie gauche) et la station de pilotage (à droite du bâtiment présentant une tourelle à usage de guet), entrainant la destruction de la maison de la Santé Maritime et du bureau de pilotage datant de la fin du 19e siècle. L'architecte du gouvernement des bâtiments civils Georges Martin est chargé de l'établissement des plans du nouveau bâtiment.
Détruits lors des bombardements, le parc à balisage et les locaux administratifs sont reconstruits entre 1949 et 1954 sur le même site.
Les ateliers, la station de pilotage, le logement de fonction (conciergerie actuellement bureaux) et le bâtiment principal sont construits en 1949-1954. Le bâtiment, situé au nord de la parcelle, et qui actuellement accueille les vestiaires, était destiné alors aux logements des électromécaniciens stagiaires. Il est construit en 1956.
Un étage supérieur est ajouté dans les années 1960 au bâtiment principal. Et d'autres logements sont construits dans le prolongement de l'immeuble de 1956. Les désordres structurels de ce dernier immeuble sont apparus dès sa construction.
Les bâtiments actuels ont accueilli pendant plusieurs années l'école des électro-mécaniciens. Les marins des baliseurs y étaient aussi hébergés.
Depuis 2019, le site héberge le Centre National des Phares et balises. De nombreux objets, issus de phares et de balises, relevant du patrimoine scientifique, technique et industriel y sont aussi conservés (collection dite "Dreyer") soit dans le bâtiment principal (en vitrines) soit dans une des cellules du bâtiment ouest.
Le Parc est associé, d'un point de vue fonctionnel, au quai Malbert dont l'extrémité sud est réservée aux baliseurs.
-
Période(s)
- Principale : 2e quart 20e siècle
- Principale : 3e quart 20e siècle
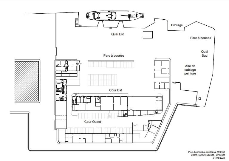
Le site des Phares et Balises de Brest se situe à l'extrémité du quai Malbert, construit sur un terre-plein.
Les bâtiments sont implantés sur le pourtour d'une parcelle créant deux cours ouest et est, un parc à bouées et une aire de sablage et de peinture.
Bâtiment 1 :
Surface au sol 1140m² environ ; construit en béton armé par coffrage ; plaque ciment en façade ocrée. Toit terrasse.
3 niveaux ; cage d'escalier et ascenseur hors d'œuvre (écartement structurel) ; escalier
Le 1er niveau est occupé par les ateliers dont 3 d'une superficie chacun de 143.10 m², 137.30m² et 345.25m².
-pont roulant
-cabine peinture
-cabine grenaillage
Le 2e niveau est occupé par une succession de bureaux séparés par un couloir central ; le 2e tiers correspond aux ateliers qui occupent le volume du 1er et 2e niveaux.
Le 3e niveau est occupé par une succession de bureaux séparés par un couloir central.
Lettres en façade : PHARES ET BALISES avec ancre, étoile dans un cercle.
Bâtiment 2 : 648m² environ au sol
1 niveau ; alignement de 6 cellules à usage d'atelier, plus 1 en angle de parcelle.
Bâtiment 3 : 205m² environ au sol ; fissures importantes ; à usage de logement.
Bâtiment 4 : dans l'alignement du précédent ; 178m² environ au sol ; à usage de logements et de vestiaires.
Bâtiment 5 : maison à usage de bureaux ; 166m² au sol environ ; 3 niveaux dont un sous combles ; 5 travées ; forte modénature pour souligner l'encadrement des ouvertures ; escalier central desservant les étages.
-
Murs
- béton enduit
-
Toitsciment en couverture
-
Techniques
- peinture
-
Représentations
-
Précision représentations
Plusieurs peintures situées à différents endroits du site : thématique maritime et brestoise.
-
Statut de la propriétépropriété de la région, Mise à disposition gracieusement aux services des Phares et Balises (secrétariat d'Etat chargé de la Mer) suite au transfert du port de Brest à la Région.
- (c) Ministère de l'écologie et du développement durable
- (c) Région Bretagne
- (c) Archives municipales de Brest
- (c) Archives municipales de Brest
- (c) Archives municipales de Brest
- (c) Région Bretagne
- (c) Archives municipales de Brest
- (c) Direction Interrégionale de la Mer Nord Atlantique-Manche Ouest
- (c) Direction Interrégionale de la Mer Nord Atlantique-Manche Ouest
- (c) Direction Interrégionale de la Mer Nord Atlantique-Manche Ouest
- (c) Direction Interrégionale de la Mer Nord Atlantique-Manche Ouest
- (c) Direction Interrégionale de la Mer Nord Atlantique-Manche Ouest
- (c) Direction Interrégionale de la Mer Nord Atlantique-Manche Ouest
- (c) Direction Interrégionale de la Mer Nord Atlantique-Manche Ouest
- (c) Direction Interrégionale de la Mer Nord Atlantique-Manche Ouest
- (c) Direction Interrégionale de la Mer Nord Atlantique-Manche Ouest
- (c) Direction Interrégionale de la Mer Nord Atlantique-Manche Ouest
- (c) Direction Interrégionale de la Mer Nord Atlantique-Manche Ouest
- (c) Direction Interrégionale de la Mer Nord Atlantique-Manche Ouest
- (c) Direction Interrégionale de la Mer Nord Atlantique-Manche Ouest
- (c) Direction Interrégionale de la Mer Nord Atlantique-Manche Ouest
- (c) Direction Interrégionale de la Mer Nord Atlantique-Manche Ouest
- (c) Direction Interrégionale de la Mer Nord Atlantique-Manche Ouest
- (c) Albert Briard
- (c) Albert Briard
- (c) Albert Briard
- (c) Direction Interrégionale de la Mer Nord Atlantique-Manche Ouest
- (c) Albert Briard
- (c) Collection particulière
- (c) Direction Interrégionale de la Mer Nord Atlantique-Manche Ouest
- (c) Région Bretagne
- (c) Région Bretagne
- (c) Région Bretagne
- (c) Région Bretagne
- (c) Région Bretagne
- (c) Région Bretagne
- (c) Région Bretagne
- (c) Région Bretagne
- (c) Région Bretagne
- (c) Région Bretagne
- (c) Région Bretagne
- (c) Région Bretagne
- (c) Région Bretagne
- (c) Région Bretagne
- (c) Région Bretagne
- (c) Région Bretagne
- (c) Région Bretagne
- (c) Région Bretagne
- (c) Région Bretagne
- (c) Région Bretagne
- (c) Région Bretagne
- (c) Région Bretagne
Documents d'archives
Bibliographie
-
PRIGENT, Guy. Phares et balises. Catalogue de l’exposition présentée au Château de la Roche-Jagu, 2002.
-
Région Bretagne (Service de l'Inventaire du patrimoine culturel)
Vincent, GUIGUENO. Au service des phares, la signalisation maritime en France XIXe-XXe siècle. PUR, 2001.
-
Périodiques
-
Bibliothèque nationale de France
http://catalogue.bnf.fr/ark:/12148/cb32755951g
Documents figurés
Chargée d'études d'Inventaire au Conseil Régional de Bretagne, Inventaire du patrimoine.
Chargée d'études d'Inventaire au Conseil Régional de Bretagne, Inventaire du patrimoine.