Etablissement des Phares et balises, port de commerce (Brest),
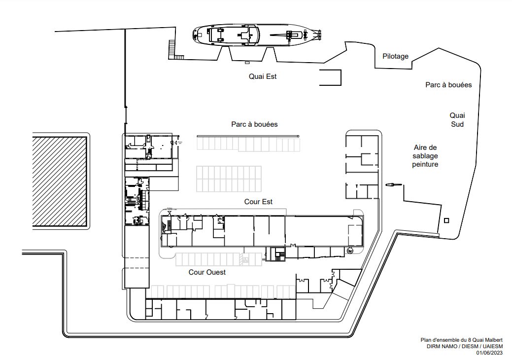
Plan d'ensemble du site des Phares et Balises de Brest, DIRM NAMO/DIESM/UAIESM, 01/06/2023Immatriculation
IVR53_20232905820NUCA
Auteur de l'illustration
Copyright
- (c) Ministère de l'écologie et du développement durable
Année de prise de vue
06/2023
Diffusion
reproduction soumise à autorisation du titulaire des droits d'exploitation
Type
phototype numérique
Besoin d'informations sur cette illustration ?
Nous contacter
Direction interrégionale de la mer Nord Atlantique-Manche Ouest (Ministère de la Transition écologique)