Dossier d’œuvre architecture IA56132175 | Réalisé par
  • enquête thématique régionale, Lycées en Bretagne
Lycée professionnel maritime et aquacole, devenu lycée professionnel maritime et aquacole Jacques de Thézac, 38 Avenue Louis Bougo (Etel)
Œuvre étudiée

Dossier non géolocalisé

Localisation
  • Aire d'étude et canton Bretagne
  • Commune Étel
  • Adresse 38 Avenue Louis Bougo
  • Dénominations
    lycée

Le lycée professionnel maritime et aquacole d'Etel est l'un des quatre établissements publics de ce type en Bretagne. Il forme des marins pêcheurs, des mécaniciens pont et machines, des conchyliculteurs.

Héritier de l'école d'apprentissage maritime d'Etel, c'est un témoin de la lente mise en place de formations professionnelles initiales pour les marins pêcheurs, après qu'un CAP a été créé tardivement (1984), suivi, en 1991, d'un BEP puis d'un bac professionnel.

Il est hébergé dans des bâtiments des années 1950. L'architecte Jacques Deyrolle a donné à l'externat un style qui rappelle les édifices rationalistes modernes de l'entre-deux-guerres. La présence d'une "tourelle" est évocatrice des navires et des passerelles de commandement. De la rue et de l'entrée, ce style s'impose bien plus que celui de l'internat, qui reprend les codes des barres scolaires des années 1950, ou que ceux des nombreux autres bâtiments issus d'extensions successives. L'architecte Pascal Debard, lauréat de nombreux concours de commande publique, a restructuré l'établissement en 1998-1999.

Certains des services du lycée maritime, restauration scolaire et gymnase, sont mutualisés avec le lycée professionnel Emile James, tout proche.

Le lycée professionnel maritime d'Etel est issu de l'Ecole d'apprentissage maritime (EAM) fondée dans la commune, en 1941, afin de former les marins pêcheurs. Celle-ci s'inscrivait elle-même dans la filiation des divers cours professionnels et écoles qui s'étaient développés, après les fondations de la première école de pêche à Groix, en 1895, puis de la société d'enseignement professionnel et technique des pêches maritimes (SEPTPM).

En 1924, des cours pratiques sont ainsi créés à Etel pour les patrons de thoniers qui ne peuvent sacrifier 4 mois de travail pour aller se former à Lorient. L'EAM d'Etel occupe différents locaux en 1941-1942, puis est fermée jusqu'à la reddition de la poche de Lorient, signée le 7 mai 1945, dans un bar étellois. En 1947, elle compte 110 élèves. Installée boulevard de la Plage, c'est alors la plus importante des écoles gérées par l'Association pour la Gestion des Ecoles d'Apprentissage Maritime (AGEAM).

L'architecte Jacques Deyrolle construit, en 1953, une école neuve

Vers 1950, le ministère de la Marine se porte acquéreur d'un terrain au lieu-dit "la Garenne" à Etel, afin d'y construire une nouvelle école qui ouvre en 1953 (officiellement en 1954). La maîtrise d'œuvre a été confiée à l'architecte Jacques Deyrolle, également architecte de l'école de pêche de Concarneau. Le permis de construire, accepté le 23 mai 1952, est rectifié le 24 septembre de cette même année.

De multiples évolutions administratives

En 1984, l'école devient "école d'apprentissage maritime et conchylicole". Elle est rebaptisée, dès 1985, "école maritime et aquacole".

Les EAM délivraient des "brevets" et des "certificats d'aptitude" maritime "pêche" et "commerce". En 1984, ceux-ci sont remplacés par un CAP de marin-pêcheur. En 1991, est créé un BEP, suivi du baccalauréat professionnel.

Les lois de décentralisation conduisent au transfert du fonctionnement de l'établissement et de son patrimoine bâti à la Région. Cette évolution marque la fin d'une forte tutelle religieuse sur les écoles de pêche, héritée du contexte de leur création sous le régime de Vichy. En 2001, elles prennent le nom de lycée professionnel maritime et aquacole (LPMA).

Première extension : le "foyer-bar-cinéma"

Avant ces évolutions administratives, l'école s'agrandit, d'un bâtiment pour héberger le "foyer-bar-cinéma". Cette construction date de 1969, selon l'ouvrage Cent ans de formation maritime à Etel ou de 1972, un "mémo" conservé dans les archives de l'établissement.

Des bâtiments et un bassin construits pour les formations conchylicoles dans les années 1980

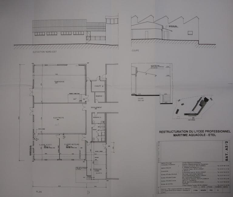
En 1983, dans le cadre de la création d'un CAP conchyliculture, les architectes Michel Ysvelain et Claude Blin, installés à Belz, donnent les plans d'un bassin, d'un terre-plein et d'un premier laboratoire à proximité de la rivière du Sac'h. Un an plus tard, au rez-de-chaussée de l'internat, ils organisent un "accueil conchyliculture". En 1985, dans le prolongement des ateliers, ils construisent trois salles de travaux pratiques "ramendage, électricité et conchyliculture". En 1987, enfin, ils allongent le bâtiment du foyer pour abriter une classe et un CDI.

En 1993 est construite une ferme aquacole, opérationnelle en 1994. Les travaux pratiques sur l'élevage des poissons, coquillages et du phytoplancton sont ainsi favorisés.

La grande restructuration de 1998, par l'architecte Pascal Debard

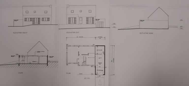
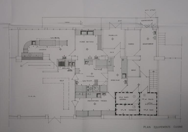
En 1998, l'école, devenue lycée professionnel maritime, propriété de la Région Bretagne, est complétement restructurée par l'architecte lorientais Pascal Debard qui intervient sur l'externat (A1), les ateliers pédagogiques (A2), la création d'une classe de navigation, devant l'internat (A3), des réserves et rangements (C1), la maison logement de fonction (E), les cuisines...

Une galerie est construite côté cour de l'externat et un grand préau créé entre le réfectoire et le bâtiment du CDI. Le préau et la galerie organisent les circulations et relient de nombreuses fonctions de l'établissement, que la construction du CDI avait séparées.

Cette restructuration d'ampleur s'explique : depuis le regroupement sur quatre sites, en 1991, de l'ensemble des lycées maritimes bretons, Etel est celui de tout le Morbihan. Dès novembre 1988, le lycée avait adressé au Conseil régional un dossier de demande de subventions pour 1989, fortement illustré de photographies montrant l'état déplorable des façades, ateliers, dortoirs... Les travaux de restructuration sont achevés en septembre 1999.

Le lycée poursuit sa mue au 21e siècle.

En 2003, une nouvelle salle de classe est construite (actuelle salle Île-de-Groix), par Eric Legrand (Alinea), 2003

En 2006, la ferme aquacole est restructurée, d'après les plans de l'architecte Michel Lucas.

En 2021 est installé un simulateur de navigation.

Le lycée accueille aujourd'hui 160 élèves, dont 21 filles et 55% d'internes. Il dispense des formations pour le CAP "matelot", les bacs professionnels "marin pêcheur", "commerce" et "polyvalent" (pont et machines), ainsi que le bac professionnel "cultures marines". Il délivre également des formations post baccalauréat de mise à niveau / "maritimisation".

Le 6 octobre 2023, le lycée prend le nom de Jacques de Thézac, fondateur de l'œuvre des Abris du marin.

Une implantation maritime

Le lycée professionnel maritime d'Etel est implanté sur une parcelle d'un peu plus de deux hectares, au lieu-dit "La Garenne", dans un contexte géographique très marqué par la maritimité, en bordure de rivière du Sac'h, et de son embouchure avec la ria. Immédiatement à l'ouest de l'établissement est implanté le CROSS-A d'Etel, qui, avec la ria et sa fameuse "barre", contribue à la notoriété de la commune. Il se situe, à vol d'oiseau, à 200 m du lycée professionnel Emile James - les pensionnaires et demi-pensionnaires du lycée maritime utilisent les services de restauration de ce dernier - et à une centaine de mètre du gymnase Men Glaz, mutualisé entre les deux établissements. Côté ville, au sud de la rue Louis Bougo, se développe un quartier d'habitat pavillonnaire.

Un plan de masse qui a évolué

Côté plan masse, l'essentiel du bâti : externat (salles de classe), internat, CDI, foyer des élèves, atelier est organisée autour d'une cour fermée. A l'origine, avant les constructions des années 1970-1980, la cour était ouverte, au nord, vers un plateau sportif de plein-air et la rivière du Sac'h où sont aujourd'hui implantées les installations conchylicoles.

Une architecture rationaliste moderne à l'origine

Le bâti originel a pour architecte jacques Deyrolle (externat, administration, internat, réfectoire, ateliers).

L'internat est une barre assez conforme aux canons de l'architecture scolaire et aux normes que le ministère de l'Education nationale met en place, influençant les constructions scolaires des autres ministères : plan rectangulaire, façade à trame régulière, deux niveaux, étage desservi par un couloir latéral et des escaliers dans œuvre.

Le bâtiment d'externat - administration, ainsi que le préau convexe qui le relie à l'internat, s'inscrivent à l'inverse plutôt dans l'esprit du classisme moderne, largement usitée dans l'architecture scolaire de l'entre-deux-guerres. L'externat- administration présente l'originalité de se développer sur un seul niveau. Une tour de 4 niveaux, dotée d'un escalier en vis, s'inscrit entre les classes et le préau. Avec sa terrasse d'observation, elle est évocatrice des bateaux et de leurs tourelles.

Internat et externat forment entre eux un angle d'environ 130°. Le préau, ouvert à l'origine, a été transformé en hall d'accueil vitré lors de la restructuration de 1998-1999. Une galerie extérieure ouverte, hors d'œuvre, dessert côté cour l'ensemble des rez-de-chaussée et les ateliers, reprenant un principe qui avait cours au 19e siècle. Le moderne béton des colonnes et toiture remplaçant cependant le métal. La galerie a également été fermée et vitrée, lors de la grande restructuration de la fin des années 1990.

Les ateliers de plan rectangulaire, à toiture à sheds.

Rupture architecturale lors des extensions successives

Les extensions ultérieures, sans même parler des installations conchylicoles, sont en rupture avec l'architecture d'origine. Si la forme rectangulaire des plans demeurent, la différence est notable au niveaux des toitures, le gris du zinc des couvertures à simple pan de l'externat, en pavillon pour l'internat, a été remplacé par exemple, par un matériau de couleur rouge (fibrociment), lorsque les architectes Michel Ysvelain et Claude Blin ont construit un CDI et des salles de classe ou de TP supplémentaires.

La restructuration de 1998-1999, a permis de moderniser le bâti : fermeture du préau hall d'accueil, création d'une galerie fermée et vitrée le long de l'externat - administration, restructuration des ateliers et de l'internat, fermeture de la cour par le prolongement du bâtiment CDI-foyer-classes, création d'une galerie ouverte devant ce dernier et la création d'un préau à toiture transparente entre celui-ci et l'internat.

L'établissement est en outre doté d'une ferme aquacole (restructurée en 2006), d'un atelier et d'un bassin conchylicoles, des divers magasins de stockage, ainsi que d'une maison- logement de fonction, restructurée et agrandies en 1998-1999 et d'une nouvelle salle de classe, implantée dans un bâtiment neuf en 2003 (Eric Legrand (Alinea), architecte).

Il possède des instruments pédagogiques spécifiques à l'enseignement maritime : simulateur de navigation, simulateur radio, bateau...

  • Murs
    • ciment
    • béton
    • verre
    • métal
  • Toits
    zinc en couverture
  • Plans
    plan rectangulaire régulier
  • Élévations extérieures
    élévation à travées
  • Couvertures
  • Escaliers
    • escalier dans-oeuvre : escalier droit
    • escalier dans-oeuvre : escalier en vis
  • Statut de la propriété
    propriété de la région, Code : 0561486L

Documents d'archives

  • Archives municipales d'Etel : sans cote. Bâtiment à l'Etat. 1952. Ecole d'apprentissage maritime, 1952.

    Archives municipales d'Etel : sans cote
  • Archives municipales d'Etel : sans cote. Permis de construire.

    Archives municipales d'Etel : sans cote
  • Archives du lycée professionnel maritime d'Etel : sans cote. Archives du LPM d'Etel, 1952- 2020.

    Archives du lycée professionnel maritime d'Etel : sans cote

Bibliographie

  • BRANCHEREAU, Jean-Pierre, CROIX, Alain, GUYVARC'H, Didier, PANFILI, Didier. Dictionnaire des lycées publics de Bretagne. Geriadur liseoù publik Breizh. Histoire, culture, patrimoine, Rennes, Presses universitaires de Rennes, 2012, 656 p.

  • Mevel [A.], Morinais [J.], Tréhorel [Y.], Ecole d'apprentissage maritime - Lycée professionnel Maritime Aquacole. Cent ans de formation maritime à Etel, Lyon, Aléas, 2004, 62 p.

  • Biget [De,is], "Les pêcheurs à l'école", Chasse-marée, n° 230, mars 2011 pp. 20-31.

  • Biget [Denis], Écoles de pêche, EAM et EMA. Lycées professionnels maritimes, le Faouët, Liv'Editions, 2010, 221 p.

Annexes

  • Plan topographique du lycée :
Date(s) d'enquête : 2019; Date(s) de rédaction : 2019, 2021, 2023