Lycée professionnel maritime et aquacole, devenu lycée professionnel maritime et aquacole Jacques de Thézac, 38 Avenue Louis Bougo (Etel),
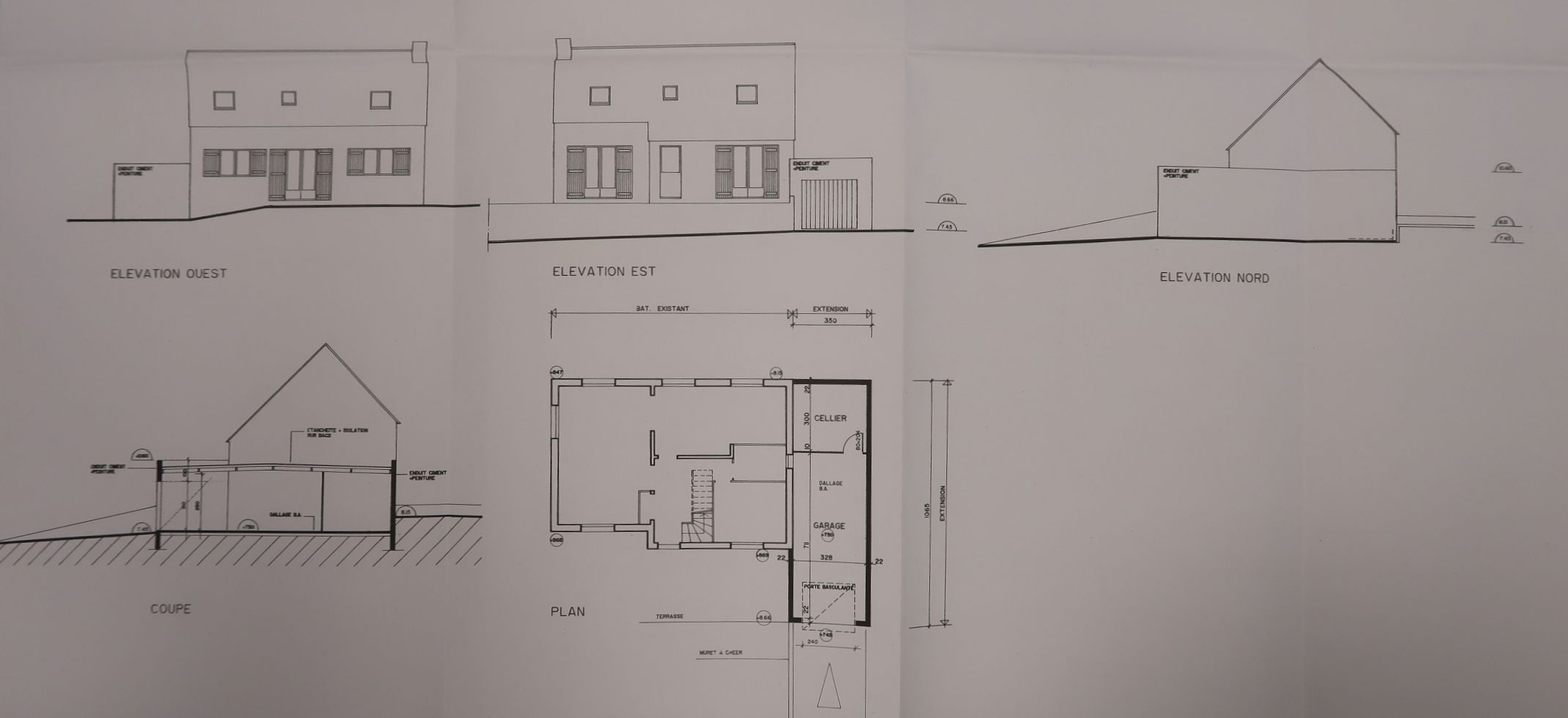
Restructuration et extension du logement de fonction : façades , coupe et plan. Pascal Debard, architecte, 1998-1999.Immatriculation
IVR53_20215605019A2
Auteur du document reproduit
Copyright
- (c) Lycée professionnel maritime d'Etel
Année de prise de vue
2020
Diffusion
reproduction soumise à autorisation du titulaire des droits d'exploitation
Type
dessin non numérique
Besoin d'informations sur cette illustration ?
Nous contacter
-
Archives du lycée professionnel maritime d'Etel : sans cote
Archives du lycée professionnel maritime d'Etel : sans cote. Plans et photographies issus du fonds d'archives du LPM d'Etel.
Architecte DPLG, 31 rue Ducouëdic, Lorient
Puis agence DDL, avenue de la Peyrière, Lorient