Base de sous-marins (Brest),
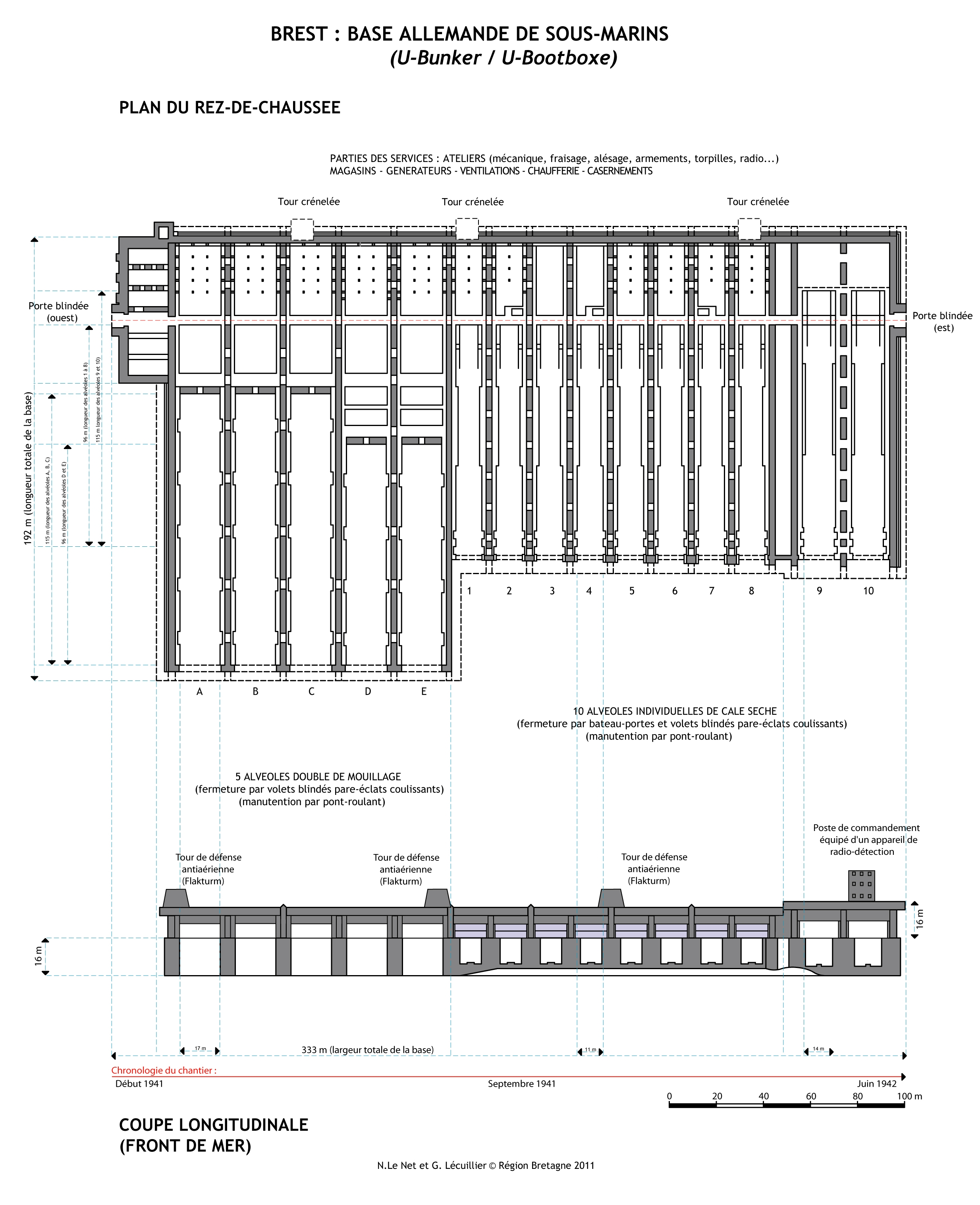
Plan, coupe et chronologie de la base de sous-marins (extrait de "Les fortifications de la rade de Brest. Défense d'une ville-arsenal", 2011)Immatriculation
IVR53_20222905841NUCA
Auteur de l'illustration
-
Lécuillier GuillaumeLécuillier GuillaumeCliquez pour effectuer une recherche sur cette personne.
Copyright
Année de prise de vue
2011
Diffusion
reproduction soumise à autorisation du titulaire des droits d'exploitation
Type
phototype numérique
Besoin d'informations sur cette illustration ?
Nous contacter
Chargé d'études d'Inventaire du patrimoine à la Région Bretagne.